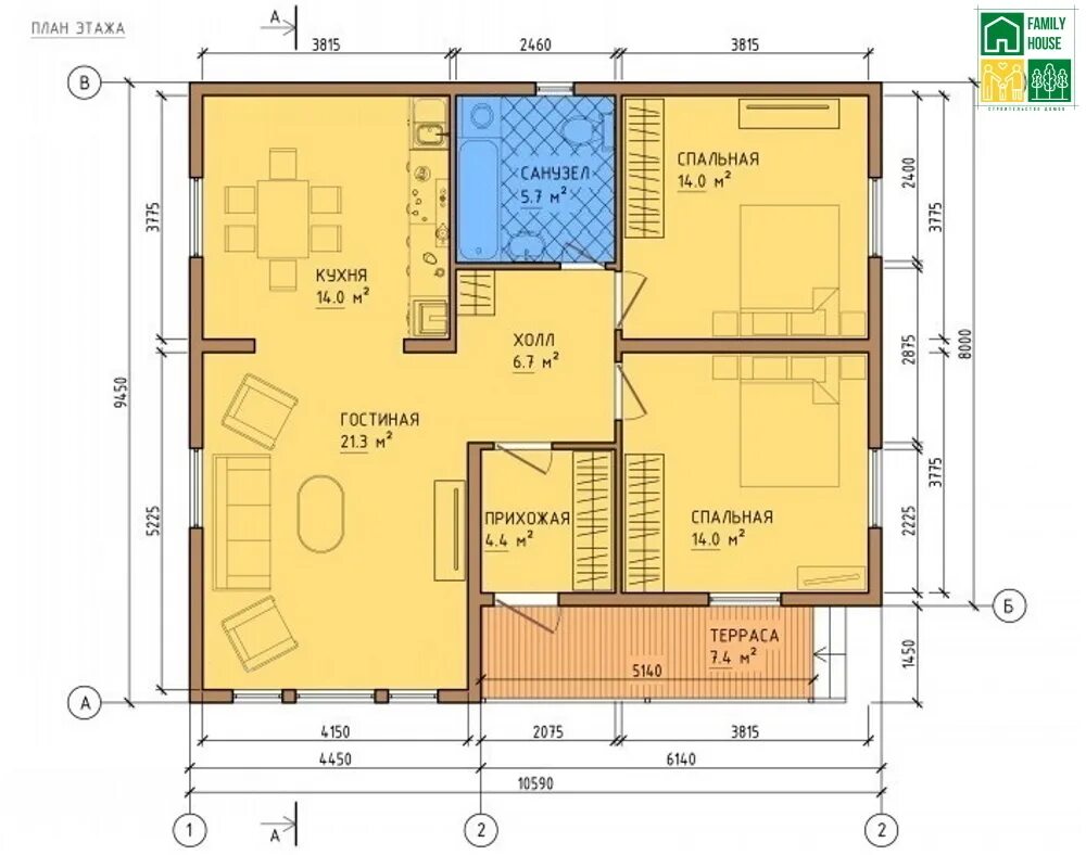
Дом 10х10