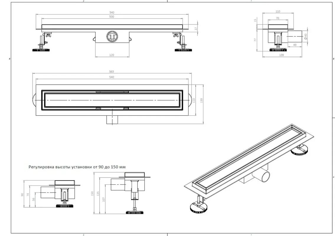
Душевой трап под плитку какой лучше выбрать