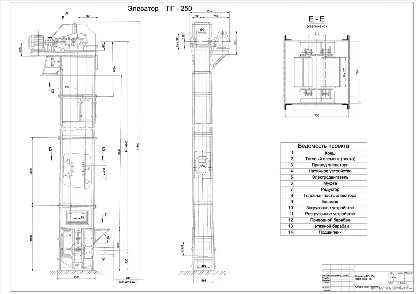
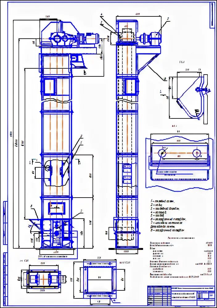
Элеватор вертикальный