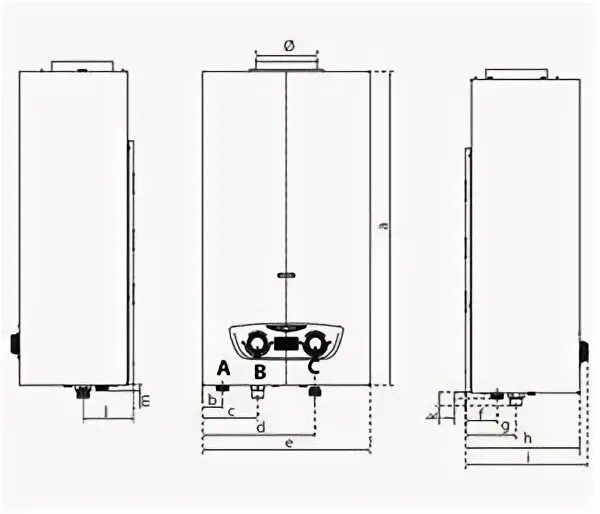
Fast r display 10l ng