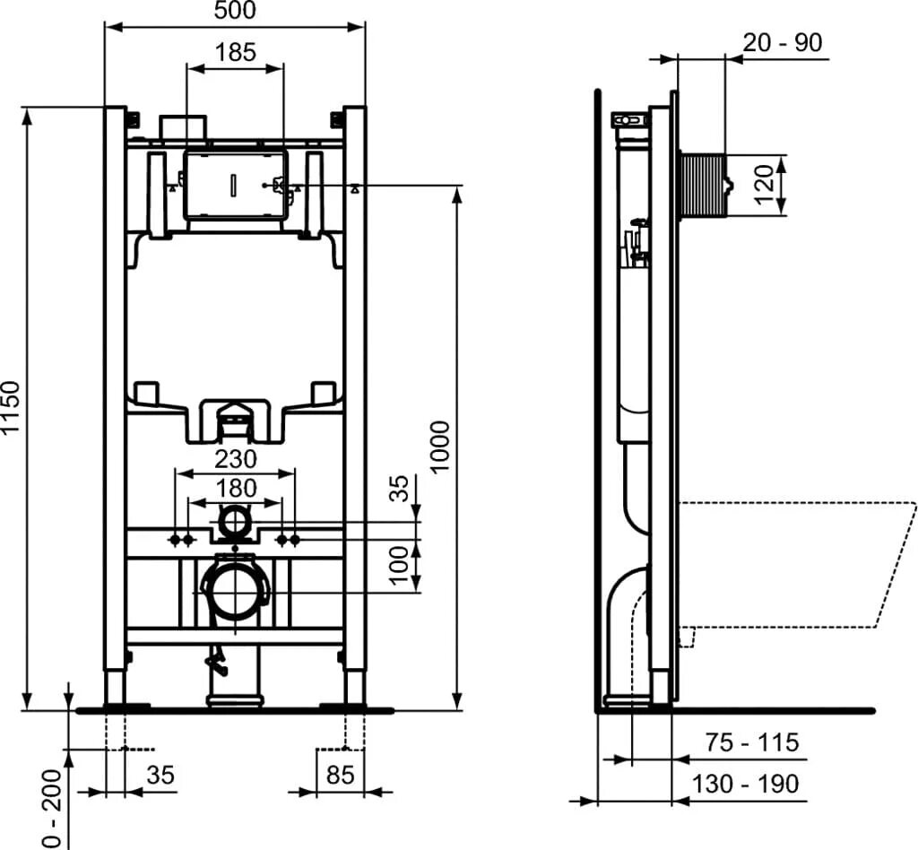
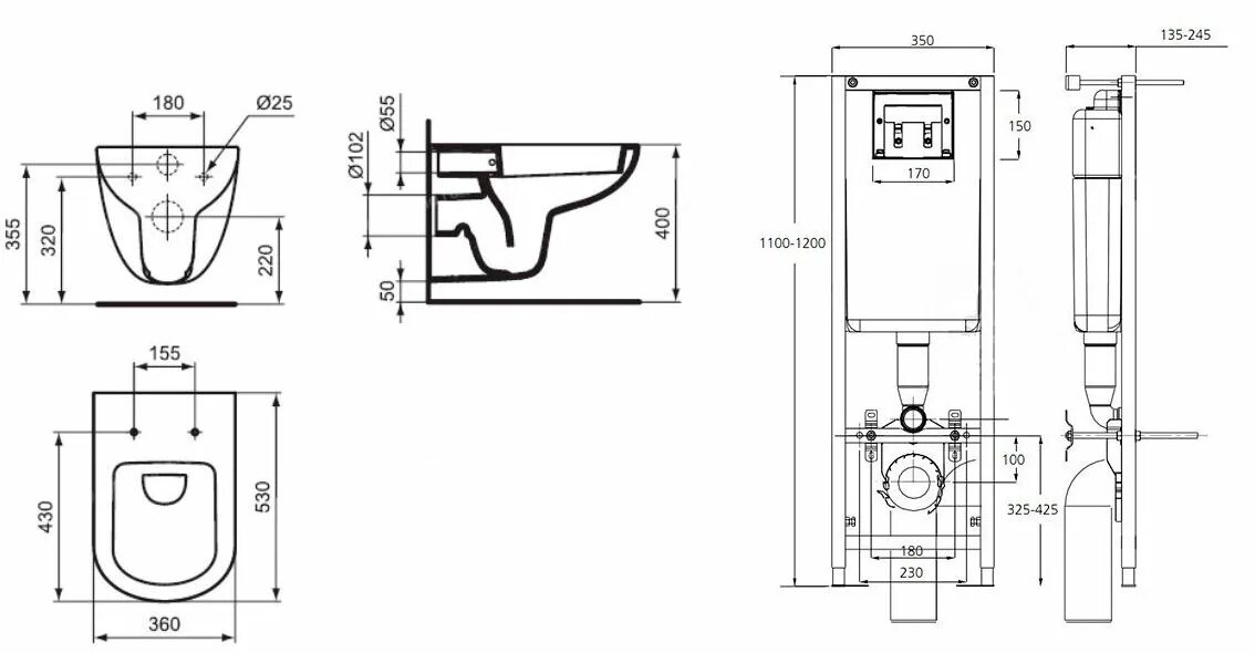
Ideal standard prosys eco