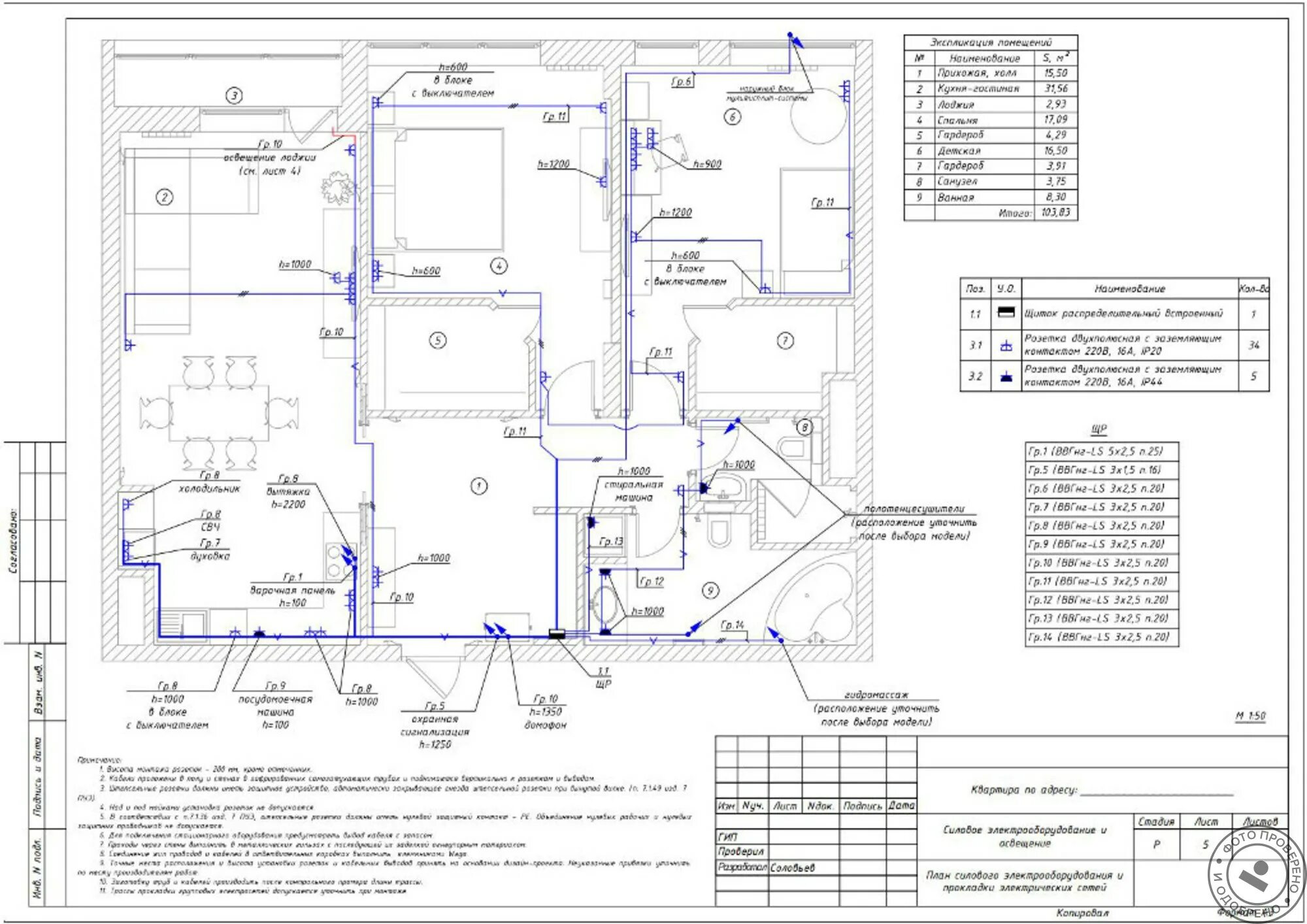
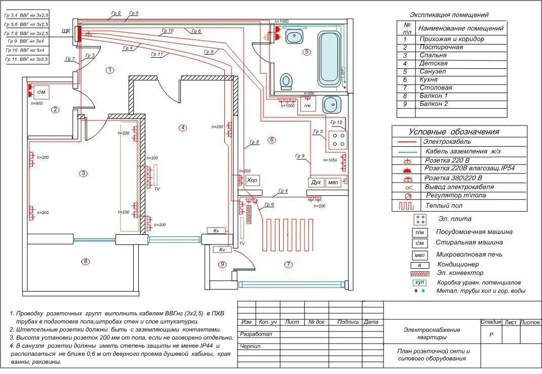
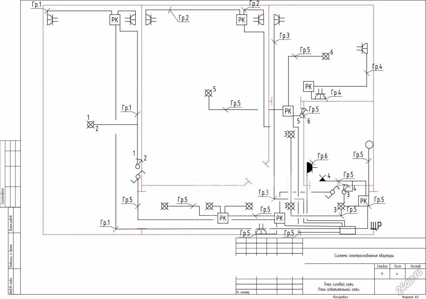
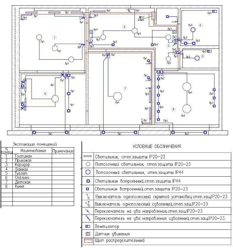
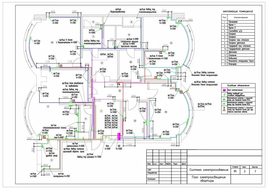
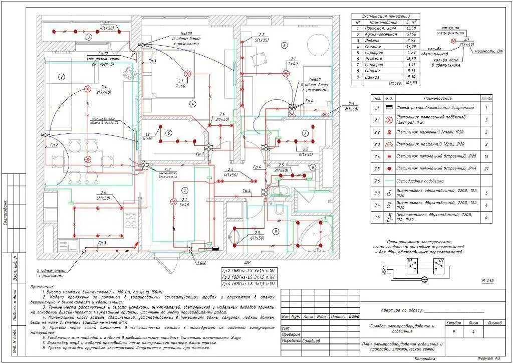
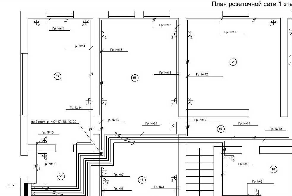
Исполнительная схема освещения