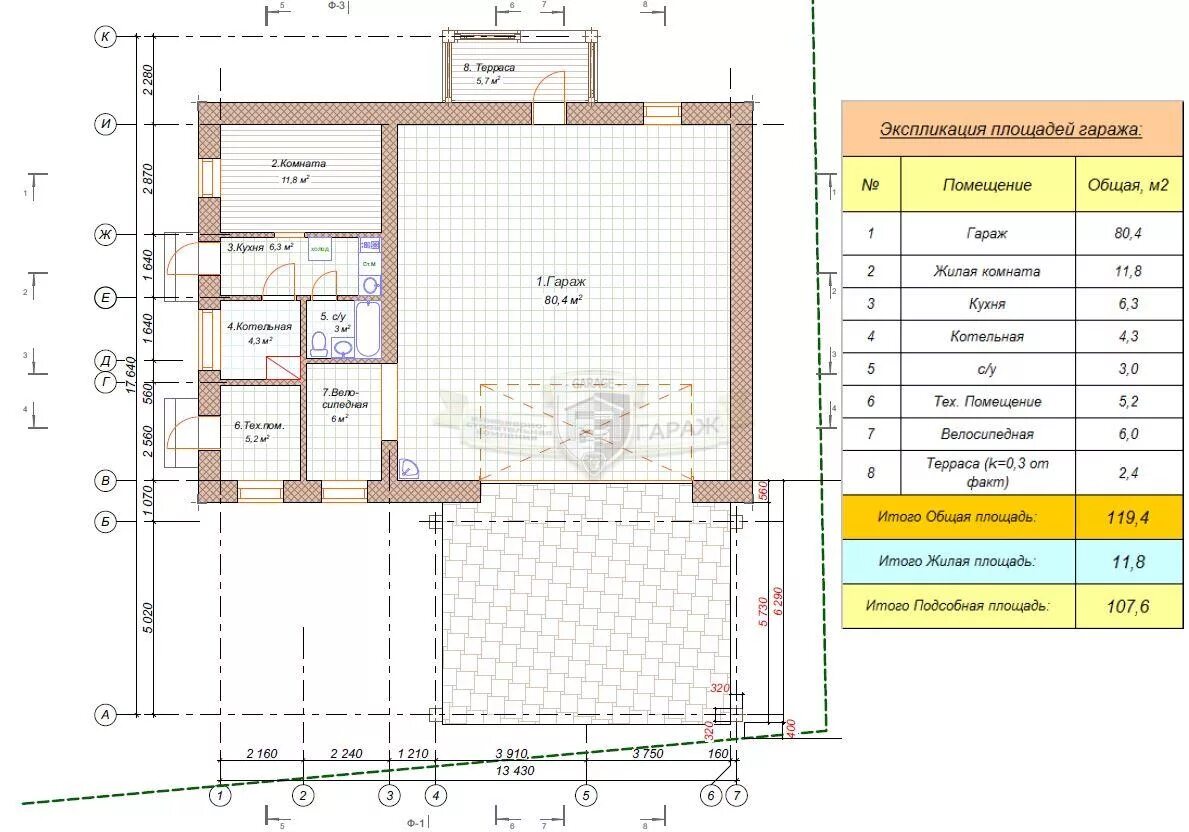
Как называется помещение где