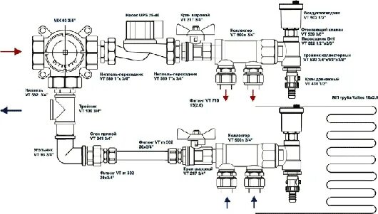
Как правильно установить насос на теплый пол