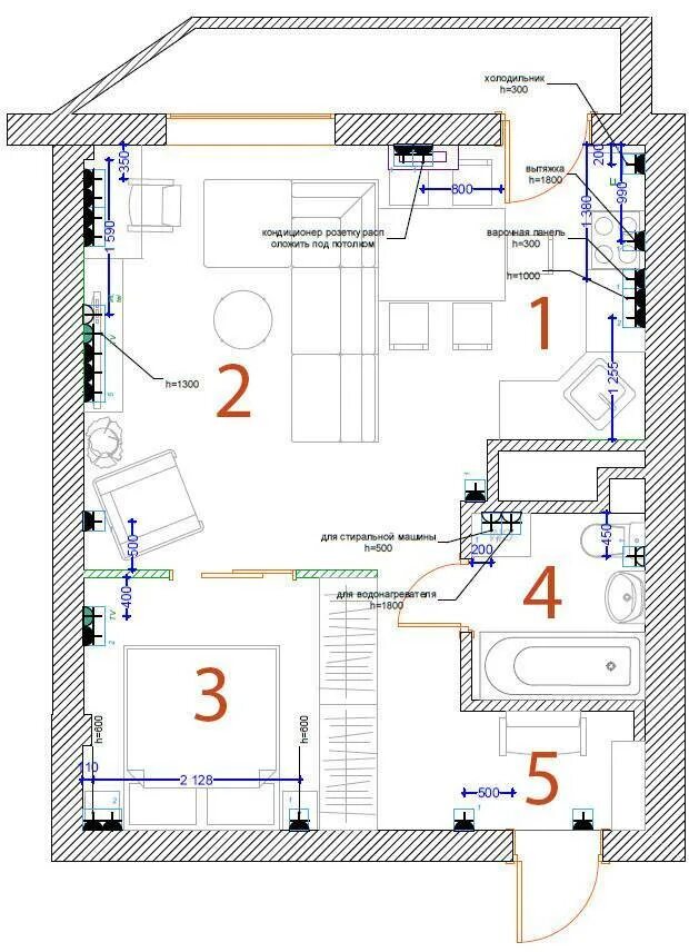
Как расположить розетки