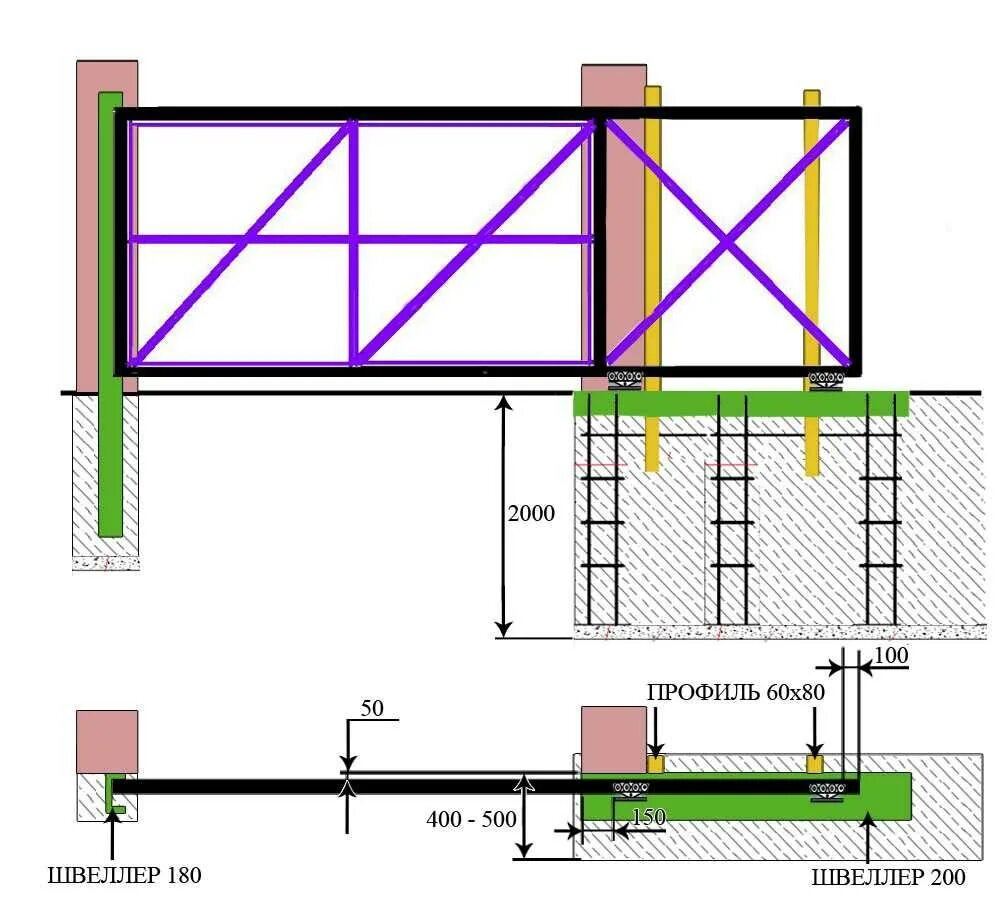
Как сделать откатные ворота своими руками