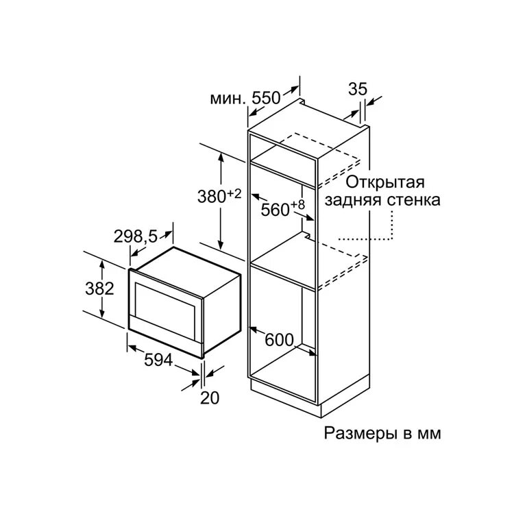
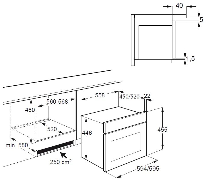
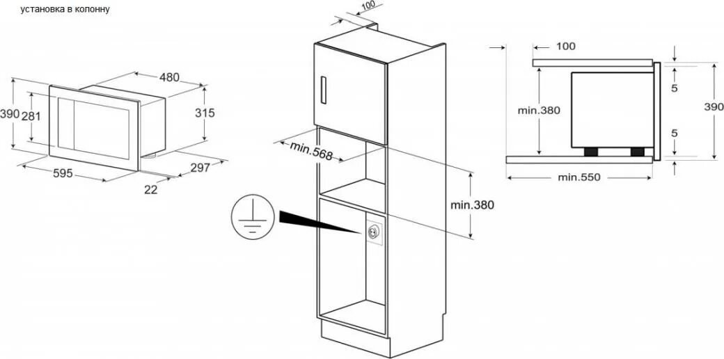
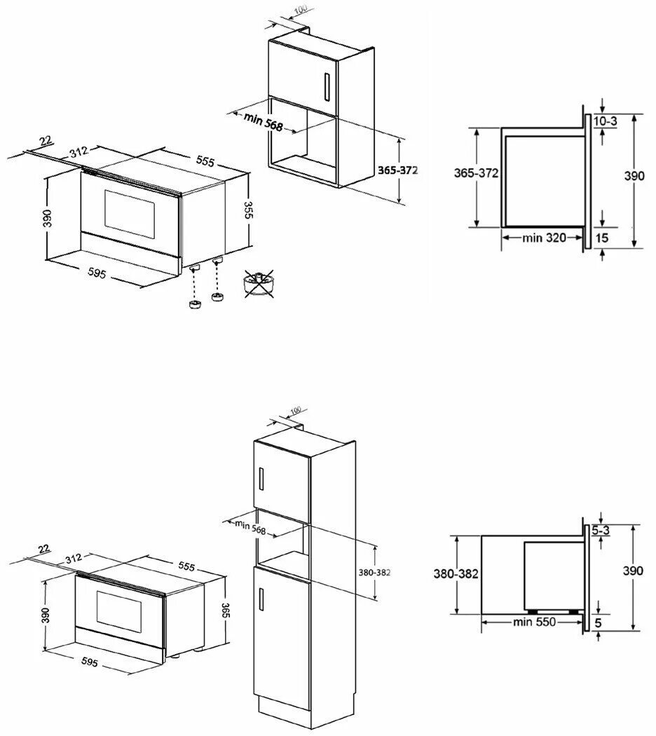
Какой размер встроенной микроволновки