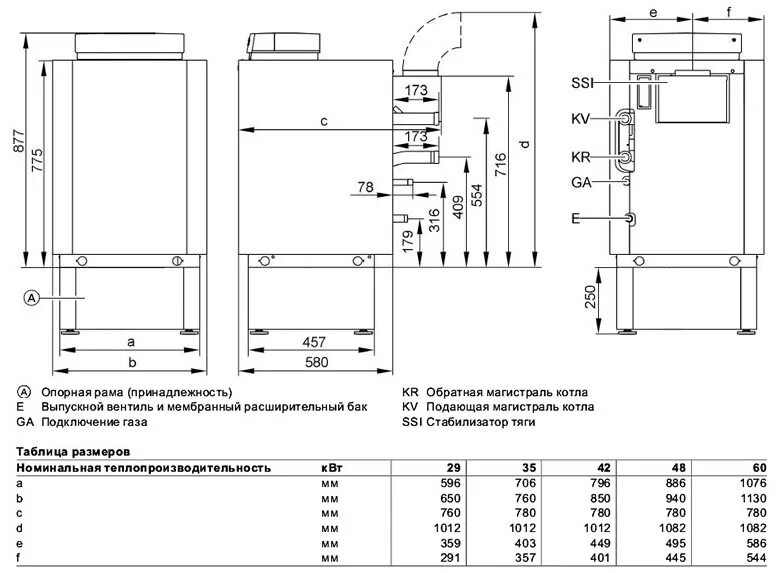
Котел viessmann 100 квт