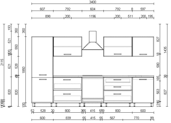
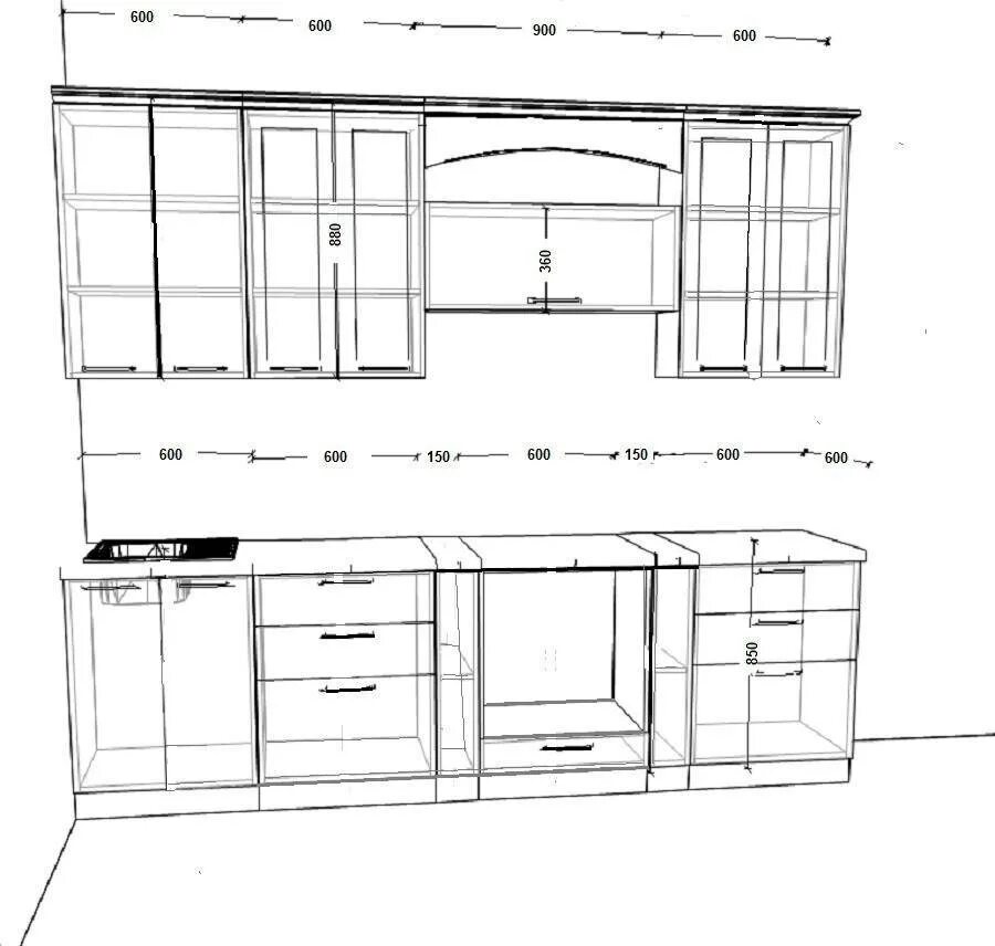
Кухня своими руками чертежи и схемы фото