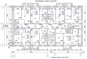
Култаево октябрьская 18