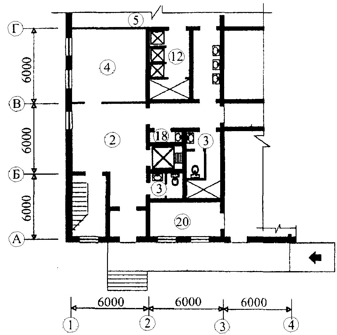
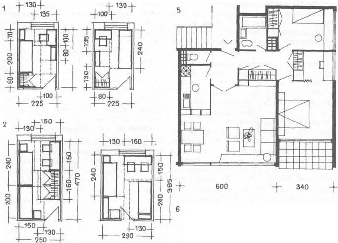
Минимальный размер здания