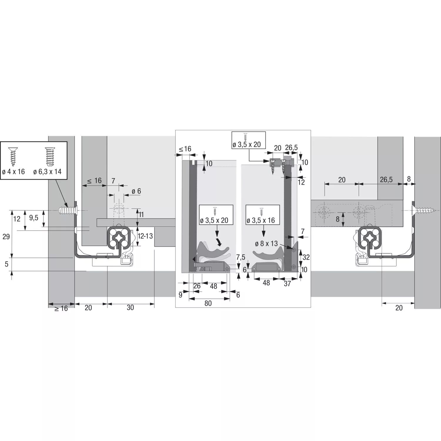
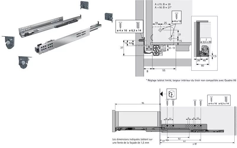
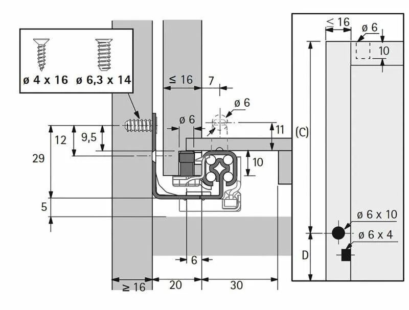
Направляющие silent system