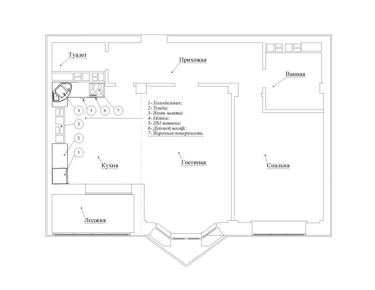
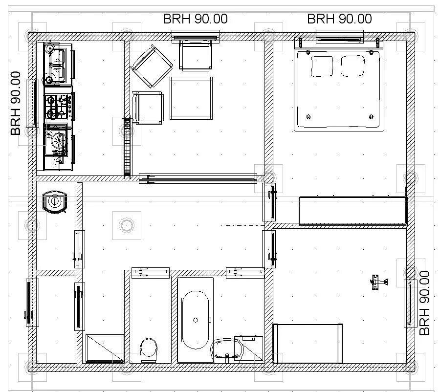
Нарисовать план квартиры