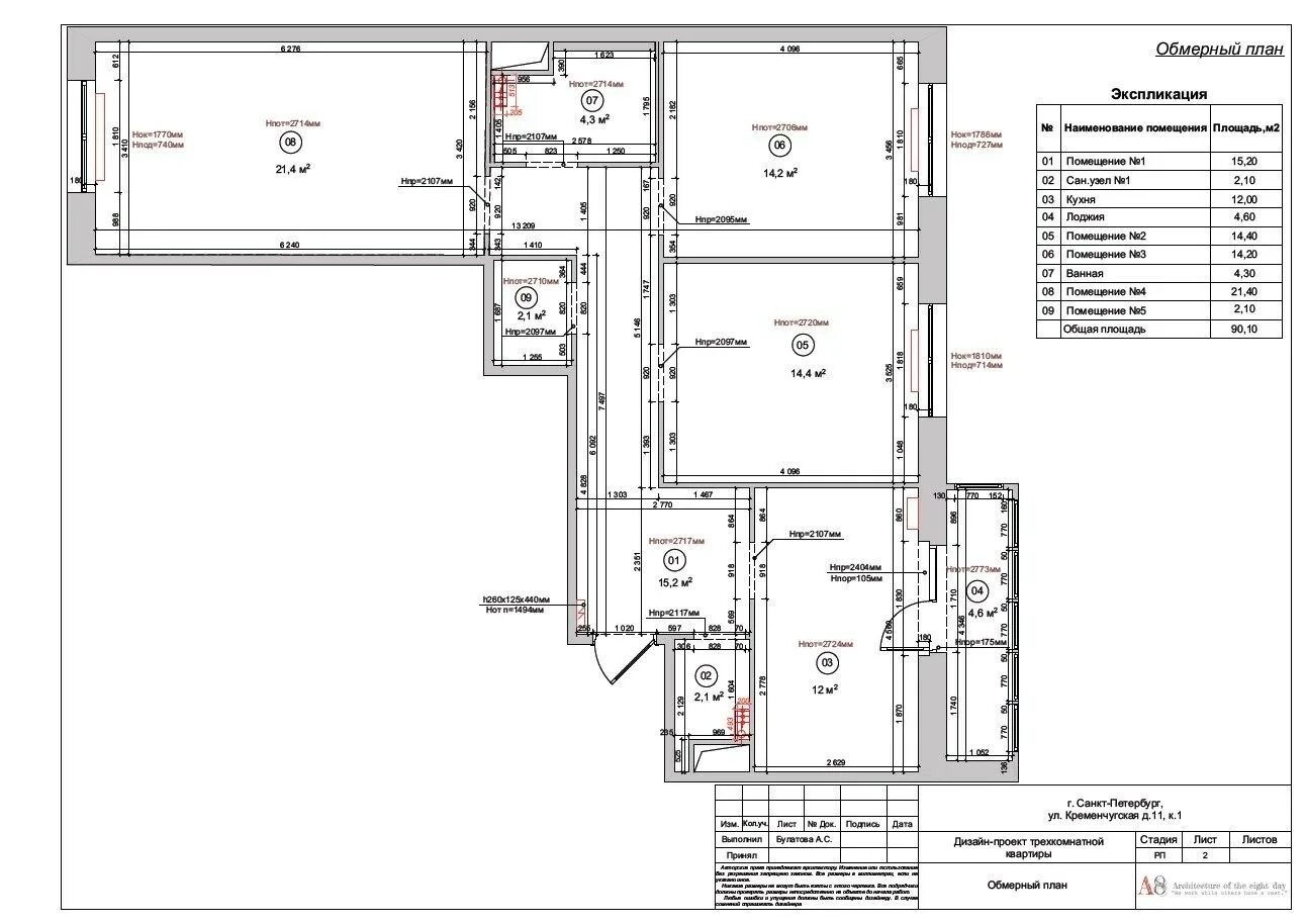
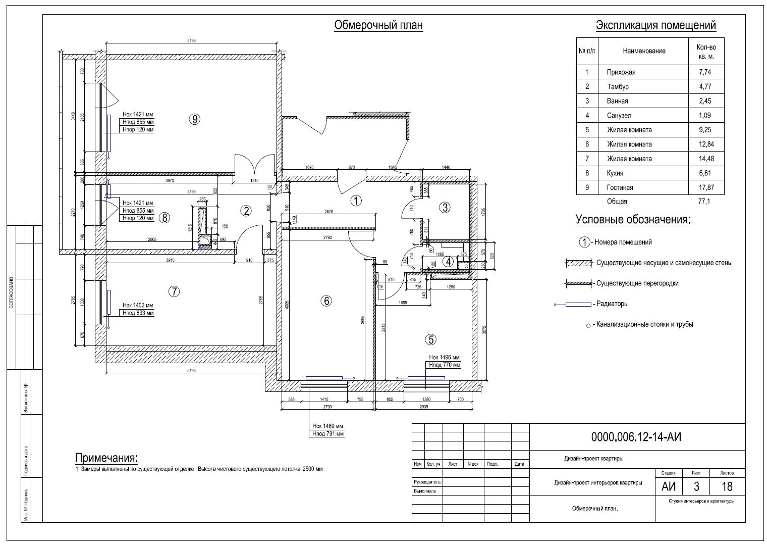
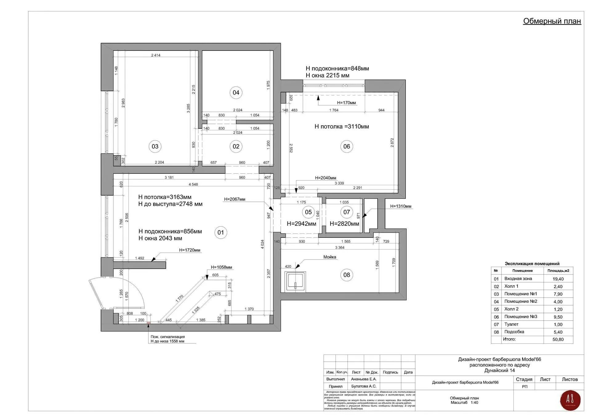
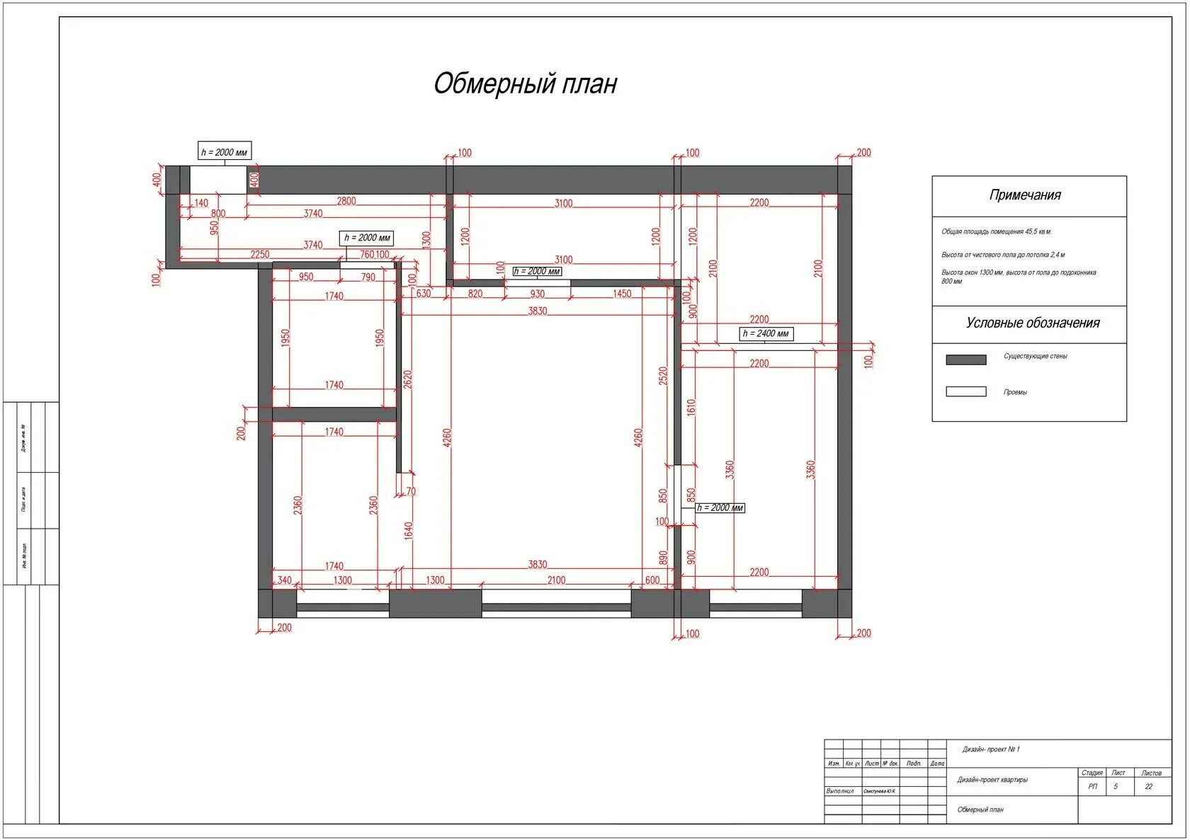
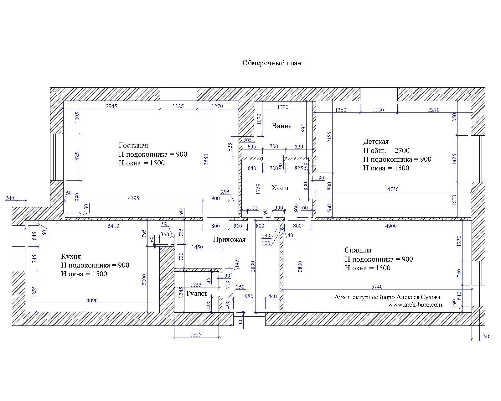
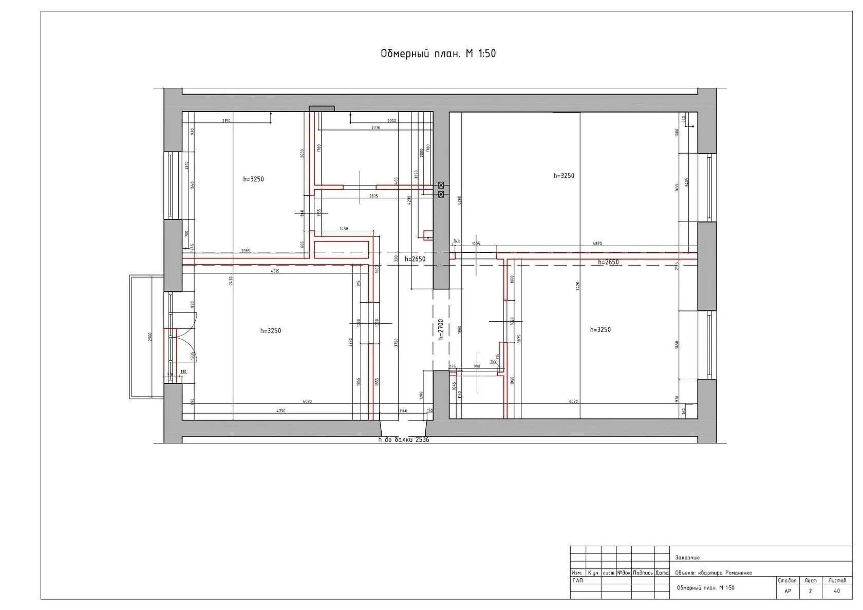
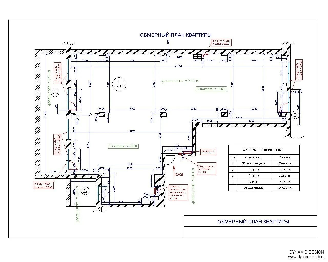
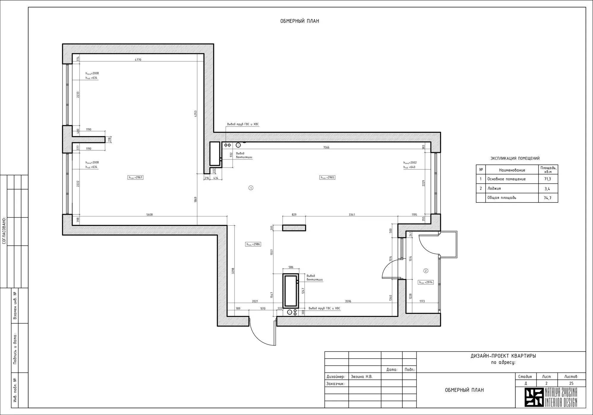
Обмерочный план помещения