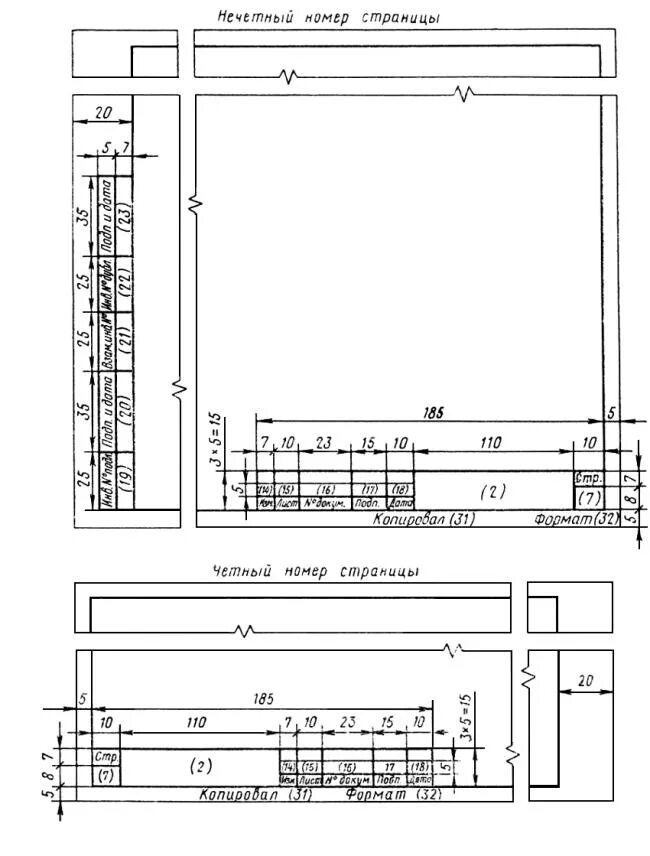
Оформление конструкторской документации