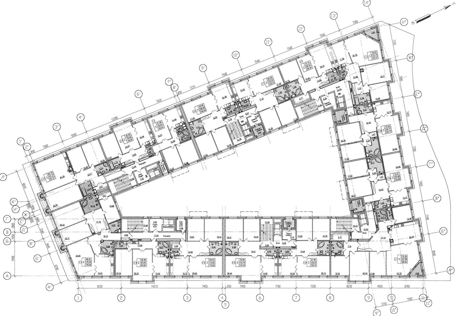
Палаццо спб