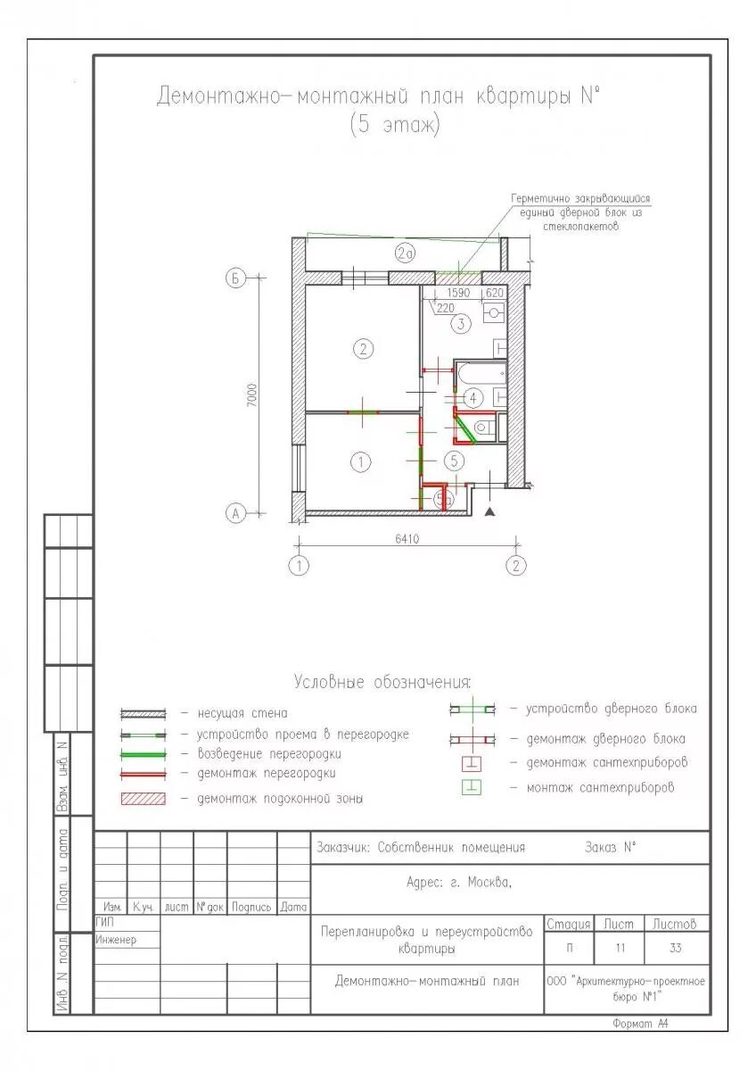
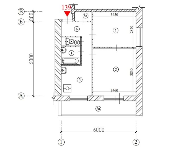
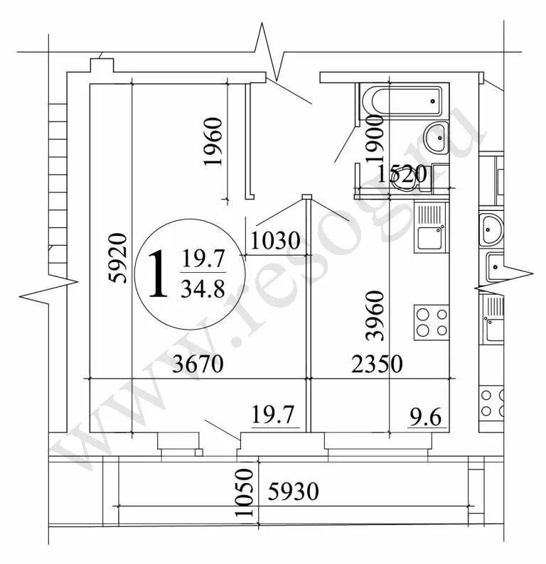
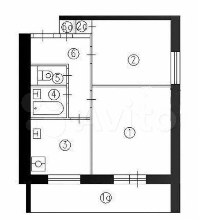
Планировка и 209а с размерами