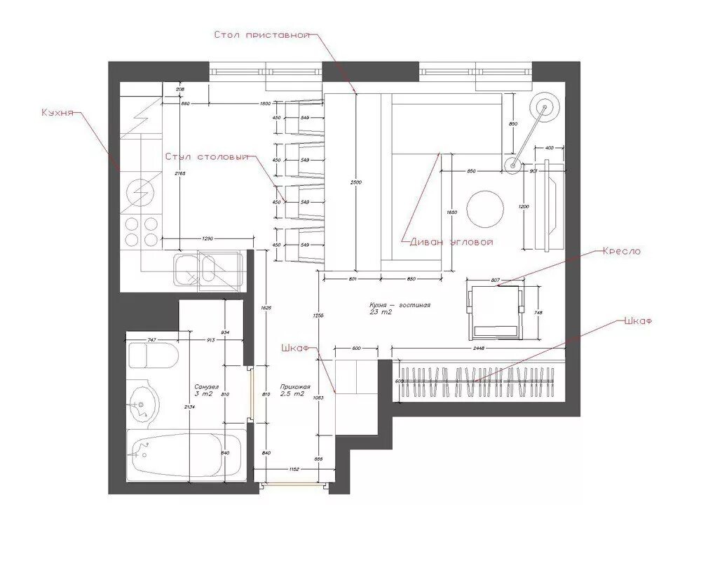
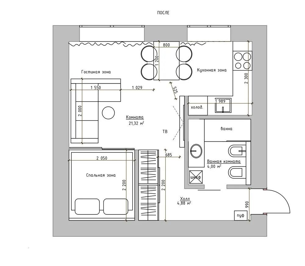
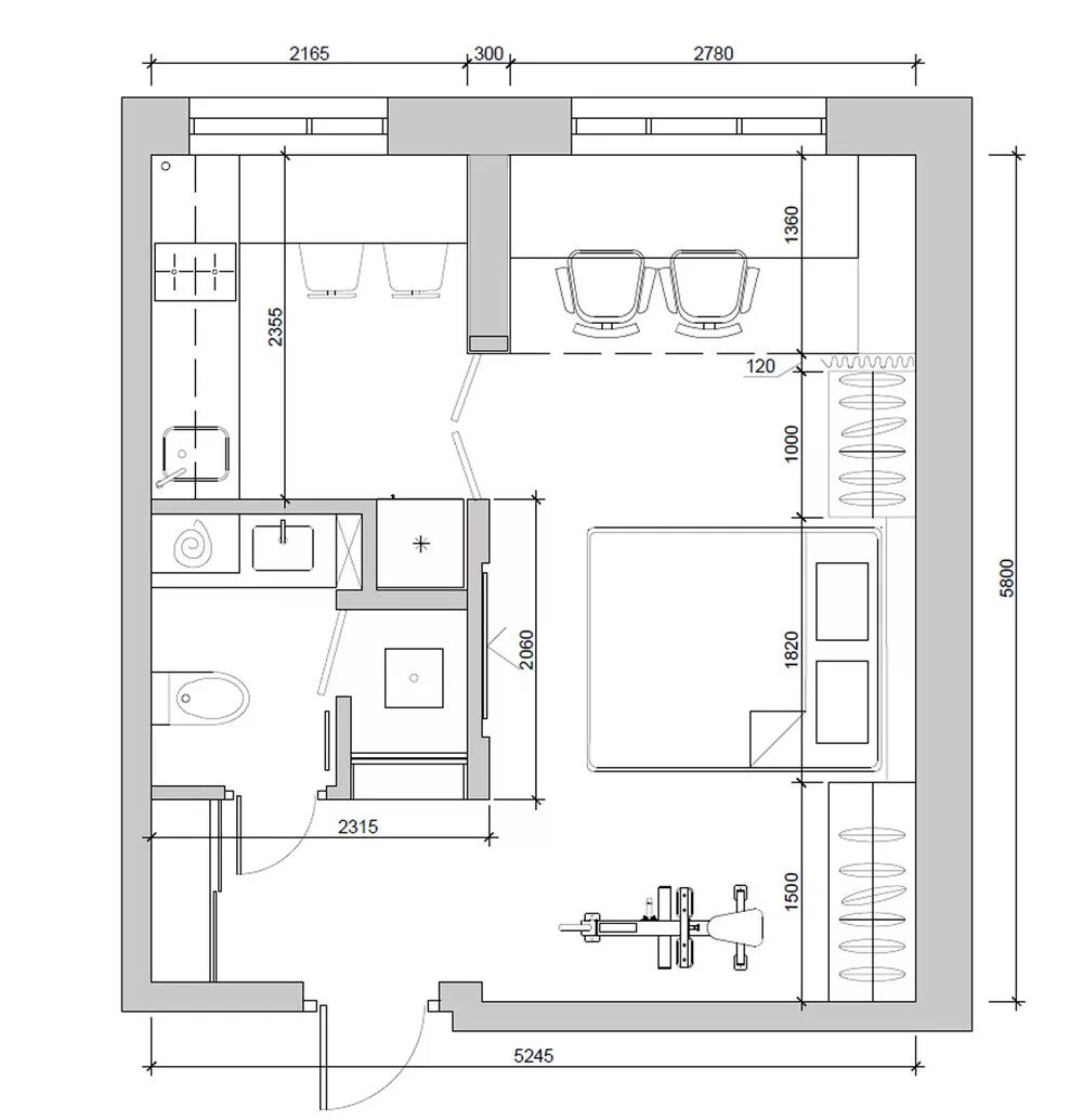
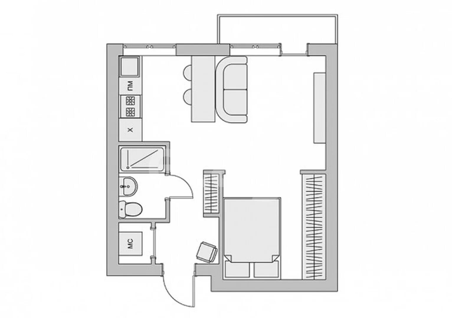
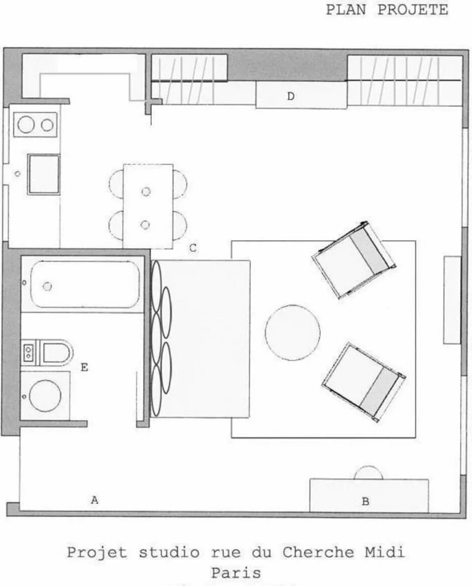
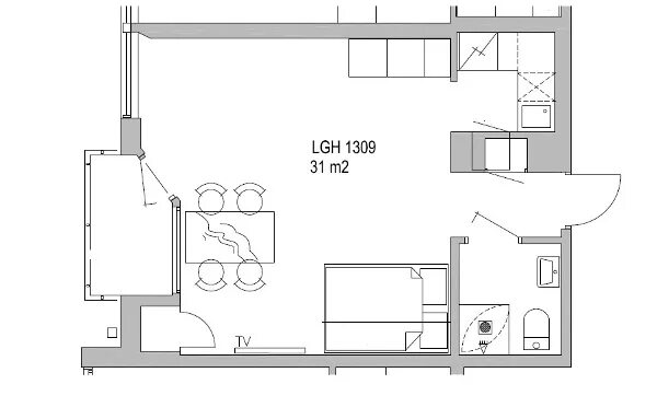
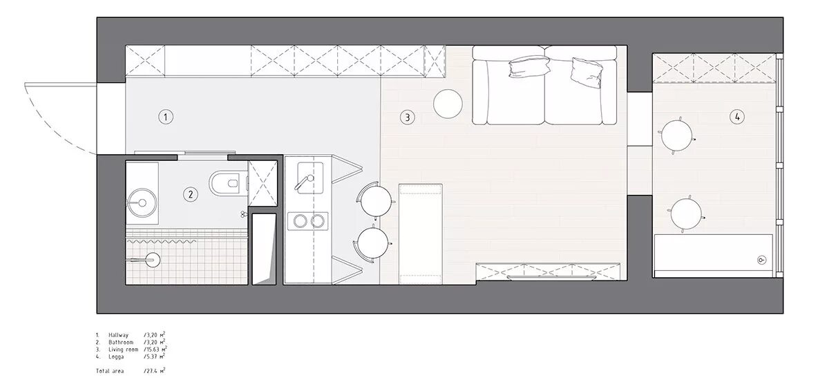
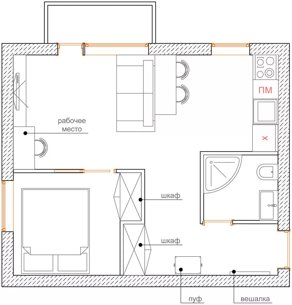
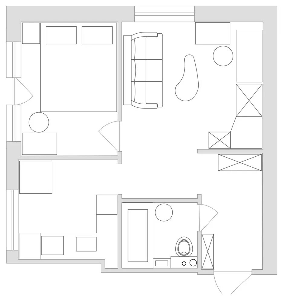
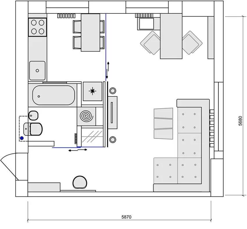
Планировка квартиры 30 кв м