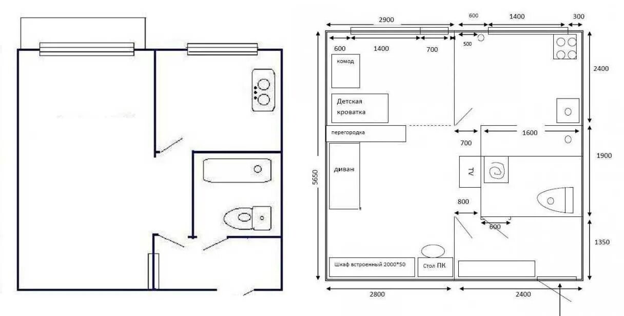
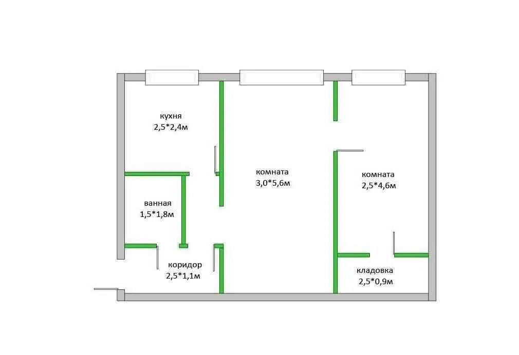
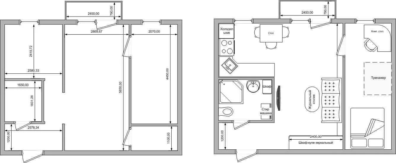
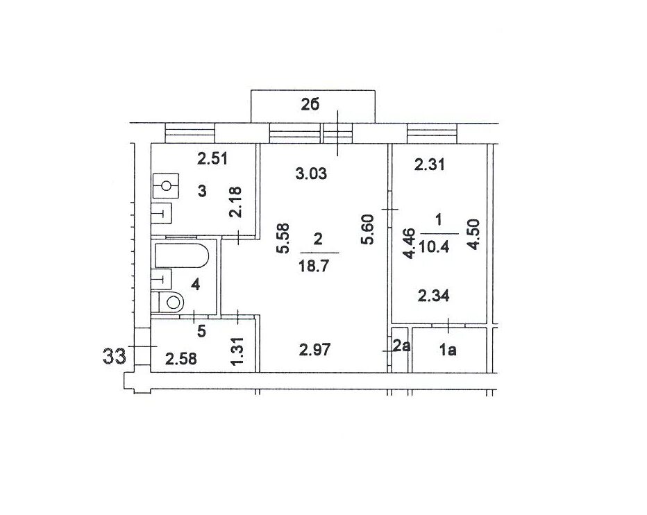
Планировка квартиры хрущевка