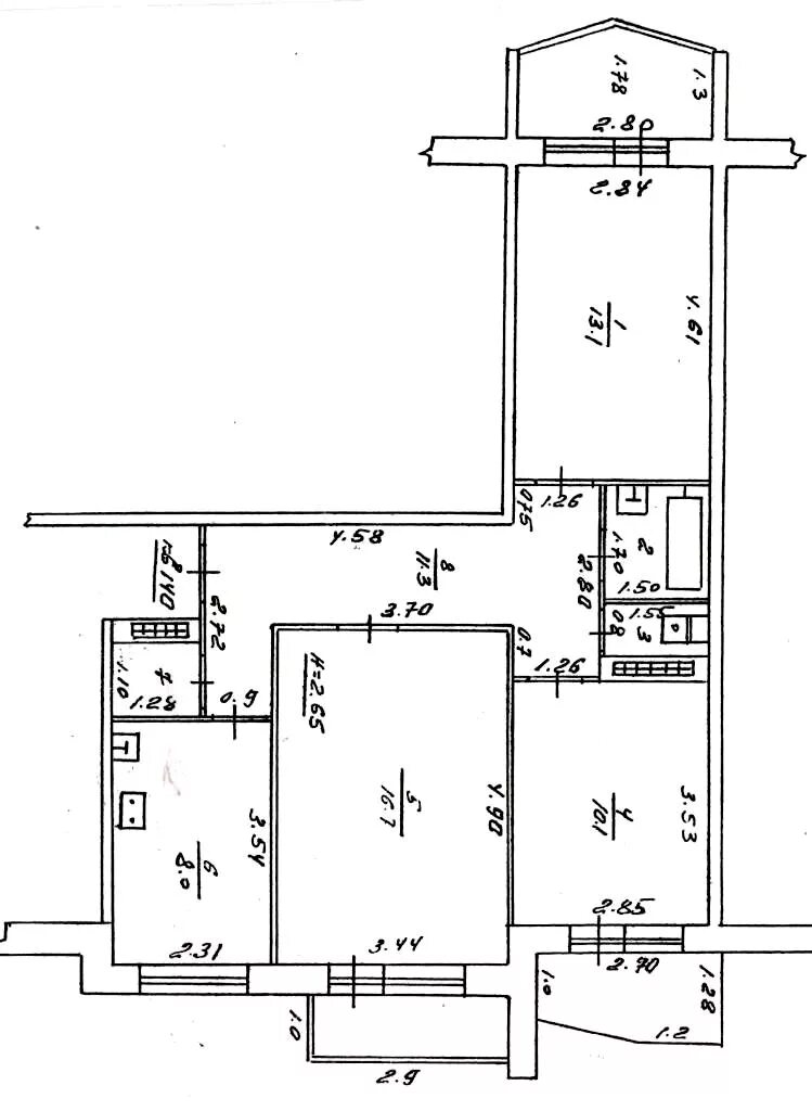
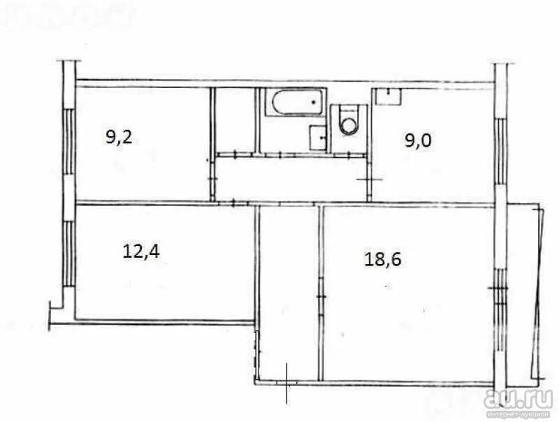
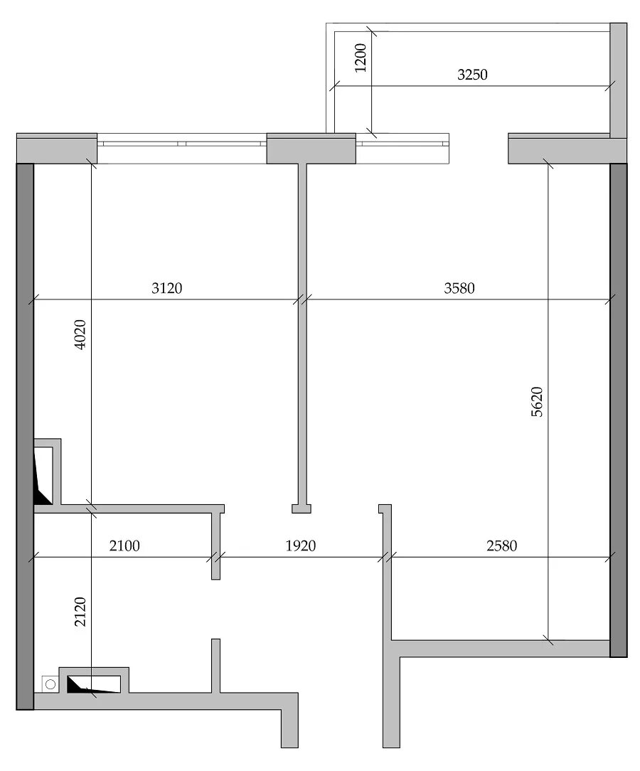
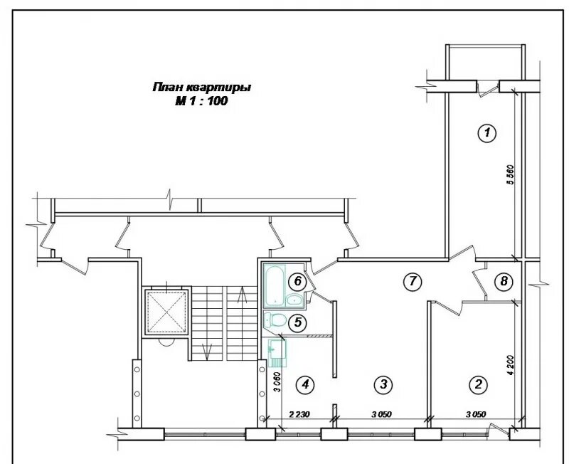
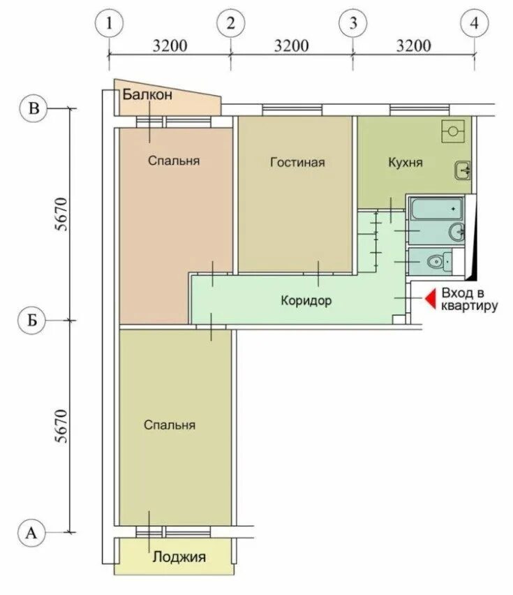
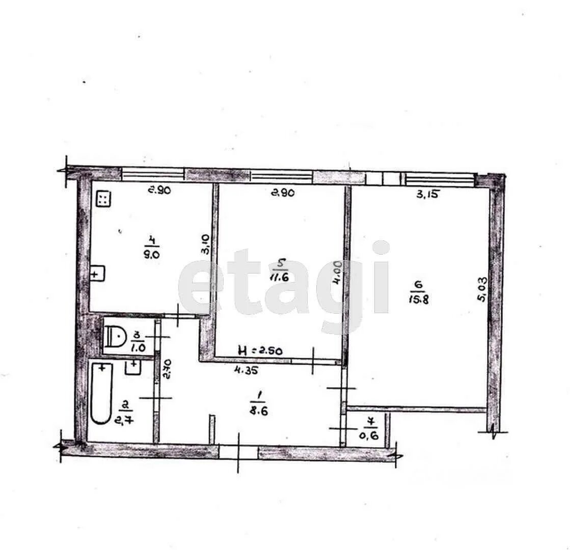
Планировка квартиры в панельном доме