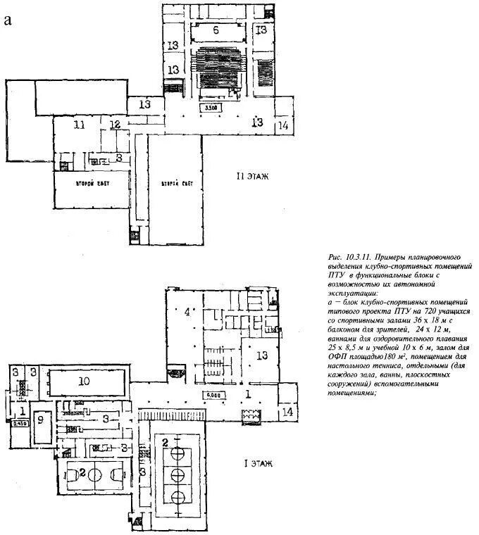
Площадь помещений вспомогательного использования