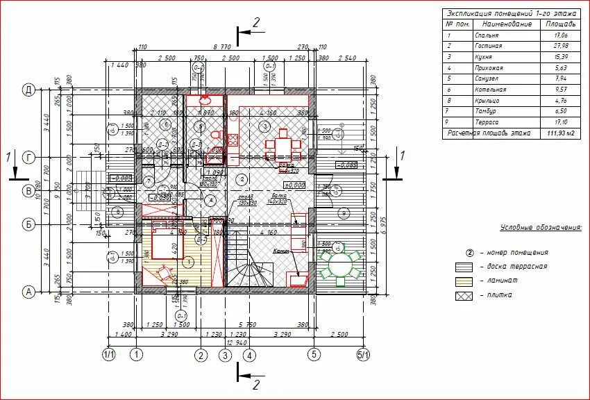
Площадь помещений здания это