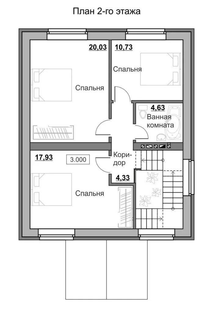
Проект дома 130 кв м двухэтажный