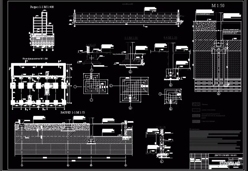
Проектирование оснований зданий и сооружений