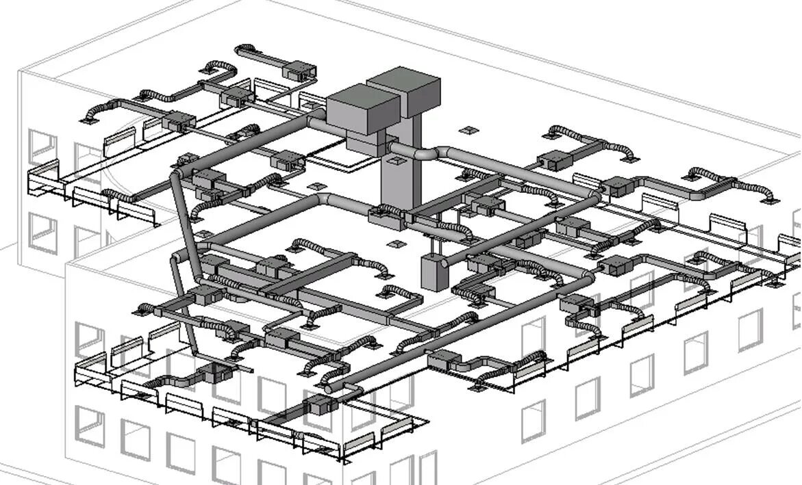
Проектирование системы распределения