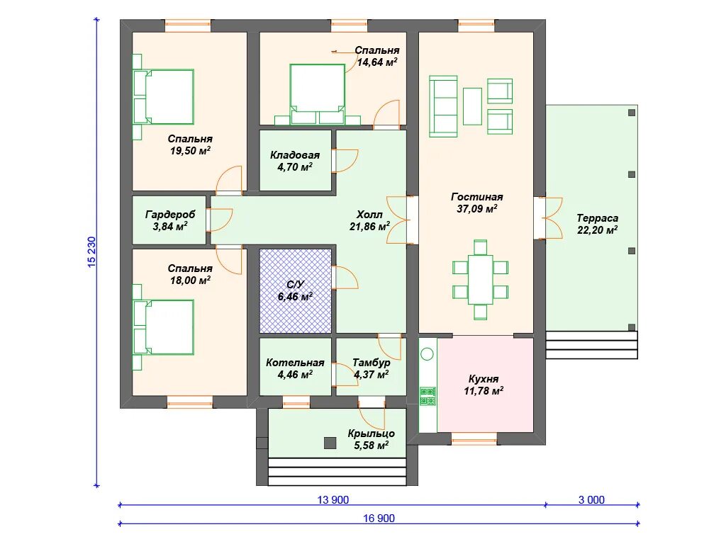
Проекты одноэтажных домов из газобетона до 150