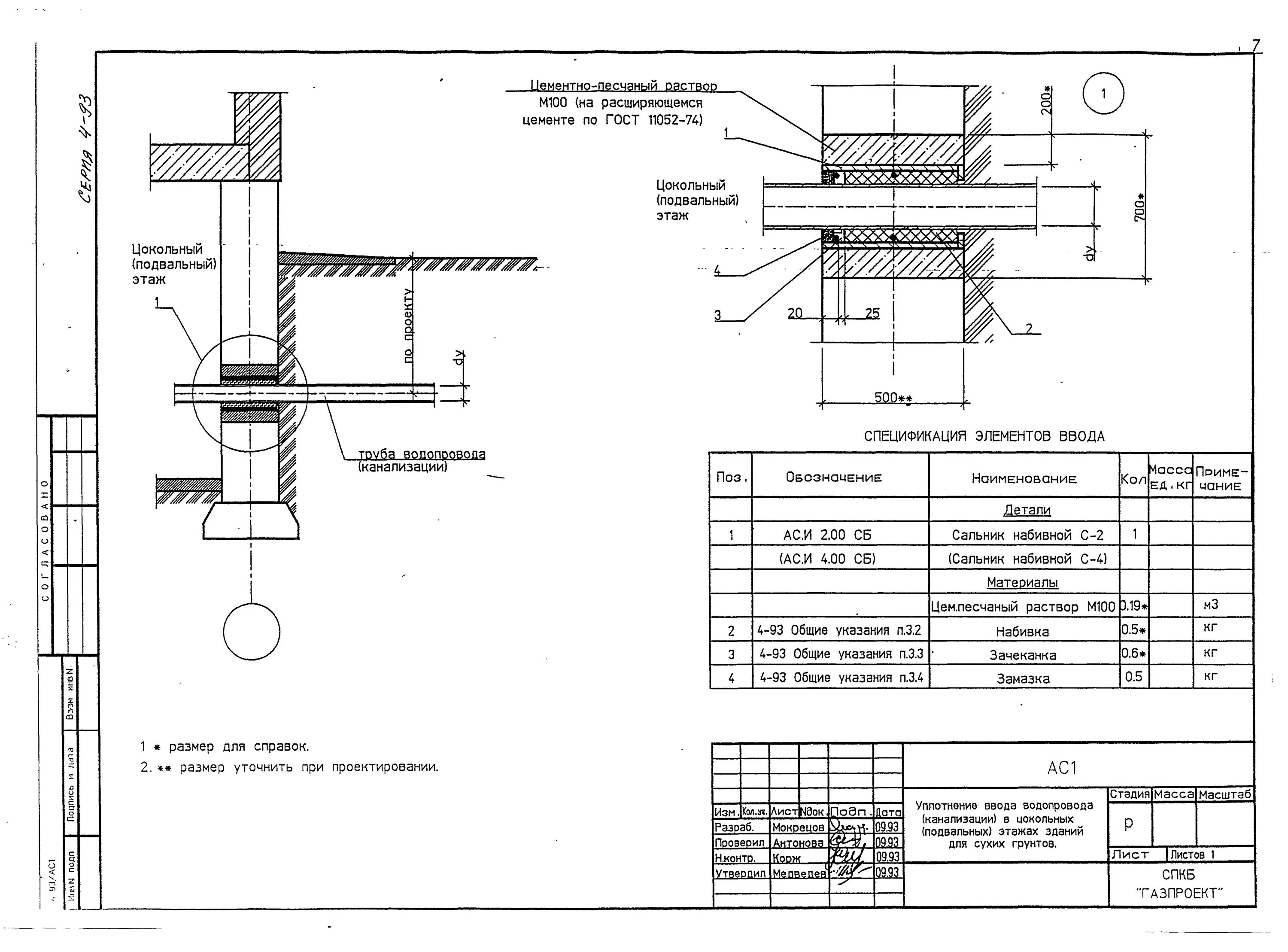
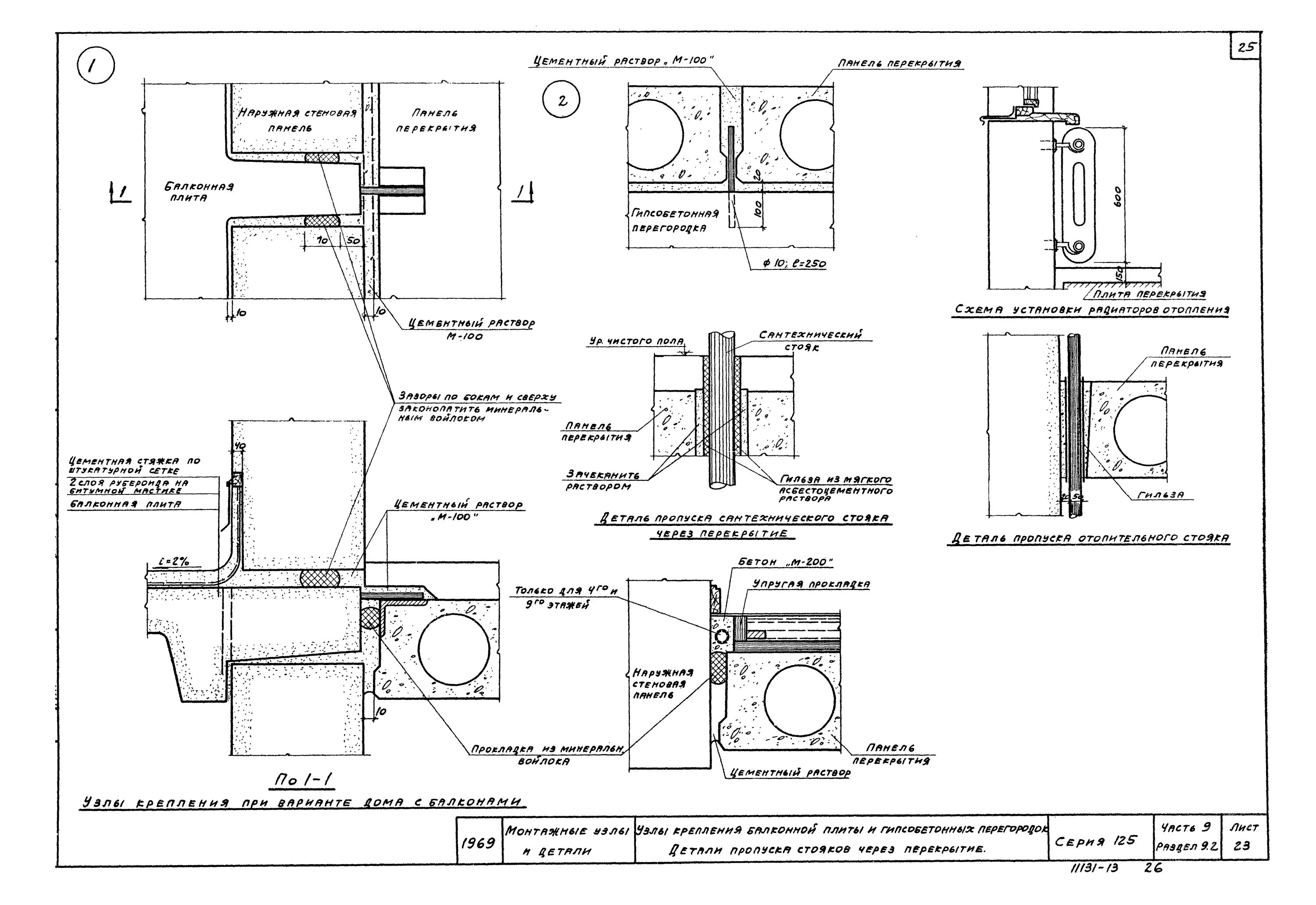
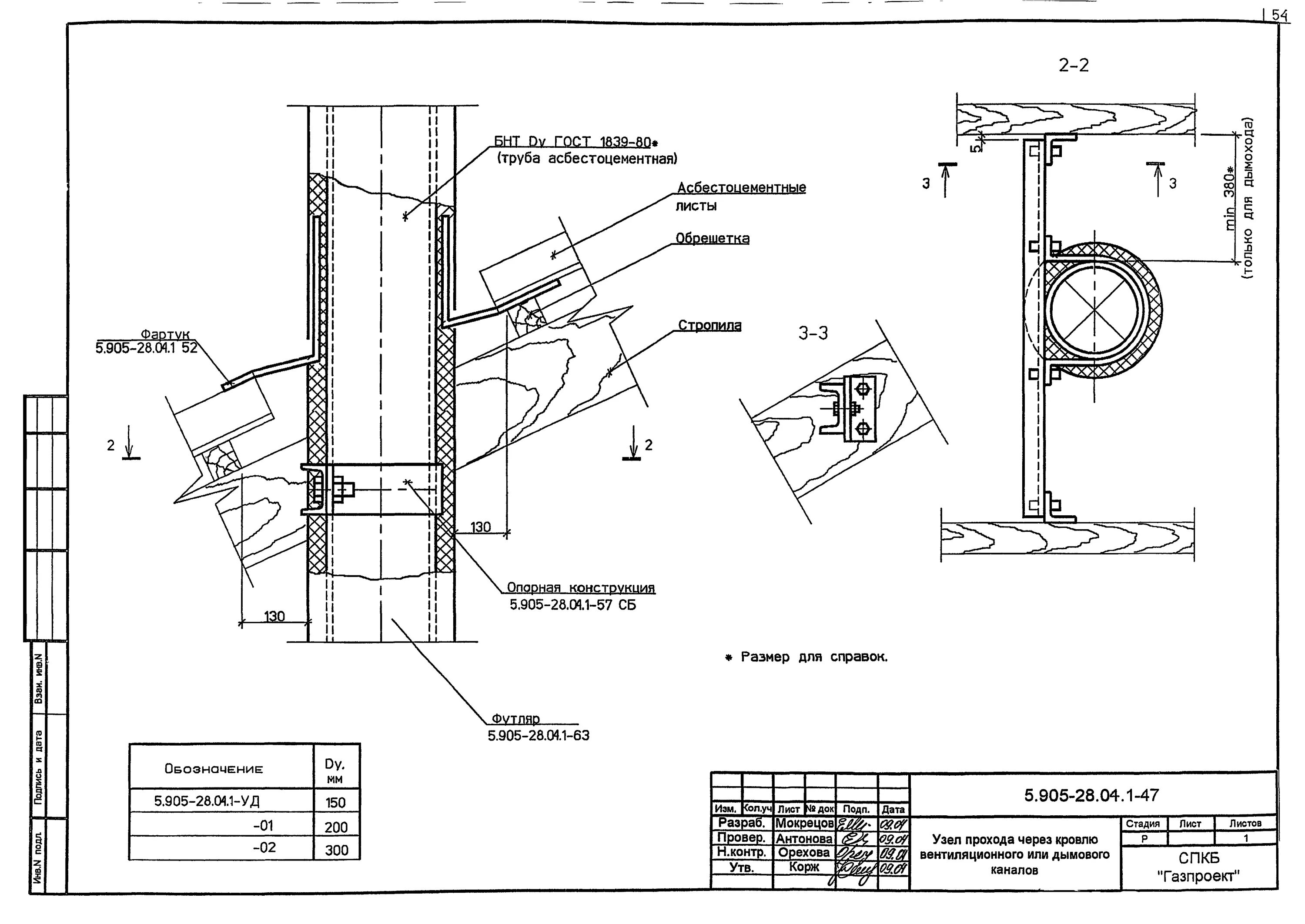
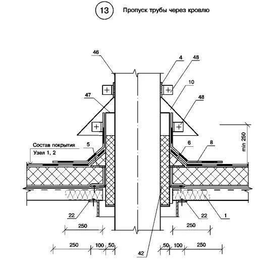
Пропуск трубопровода