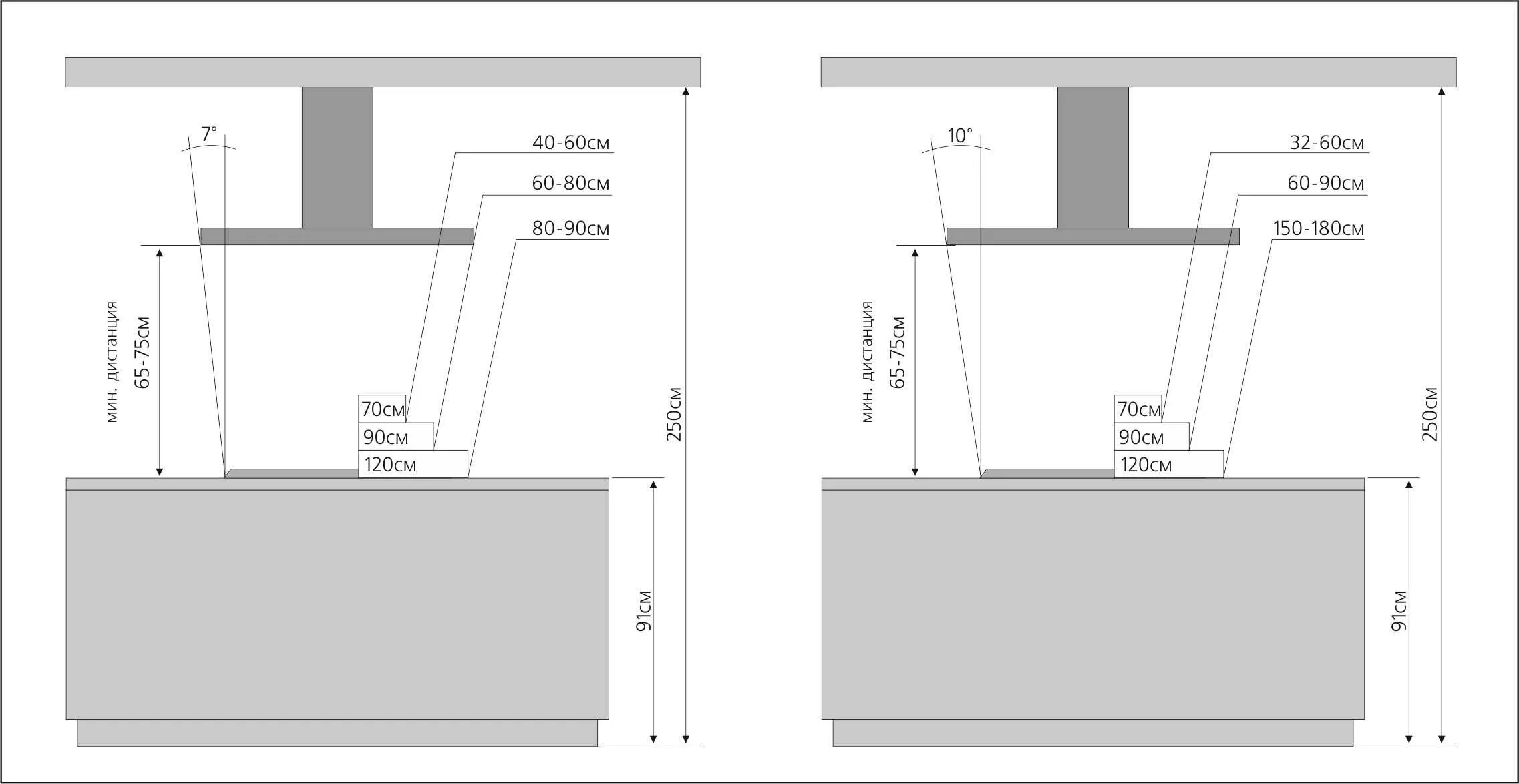
Расстояние между вытяжкой