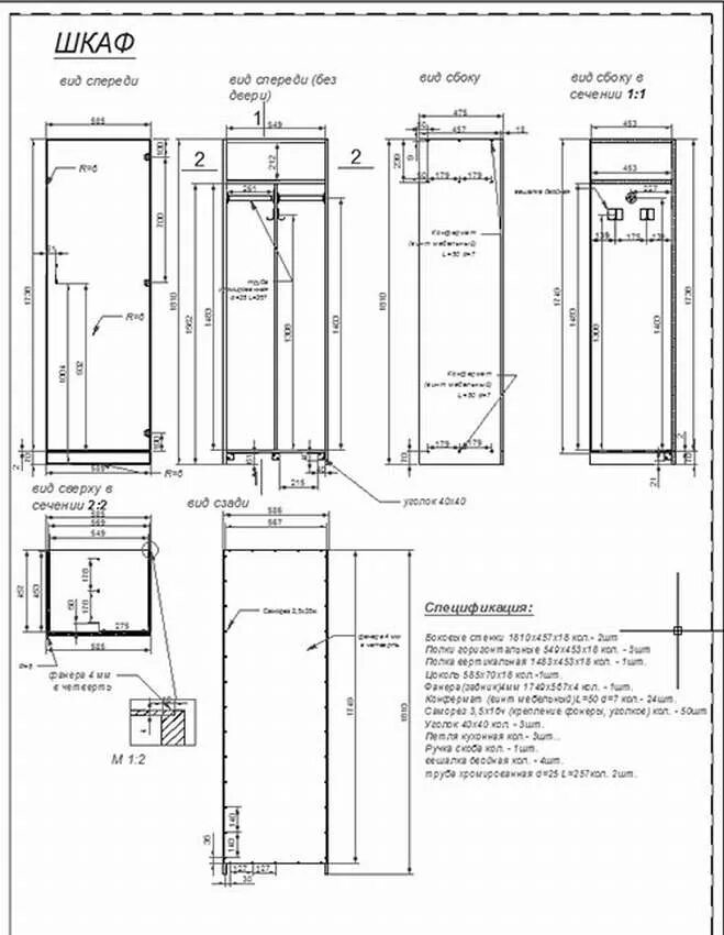
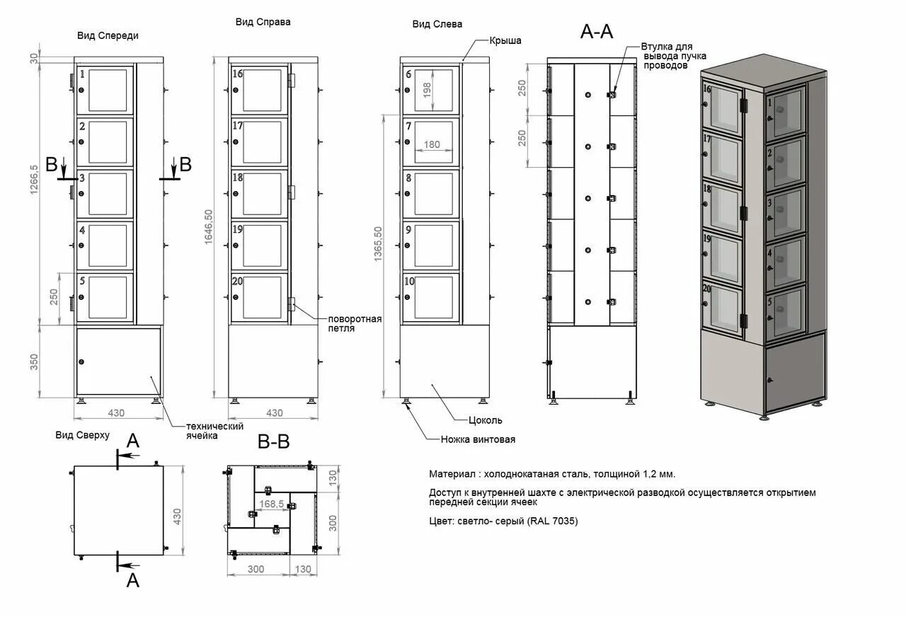
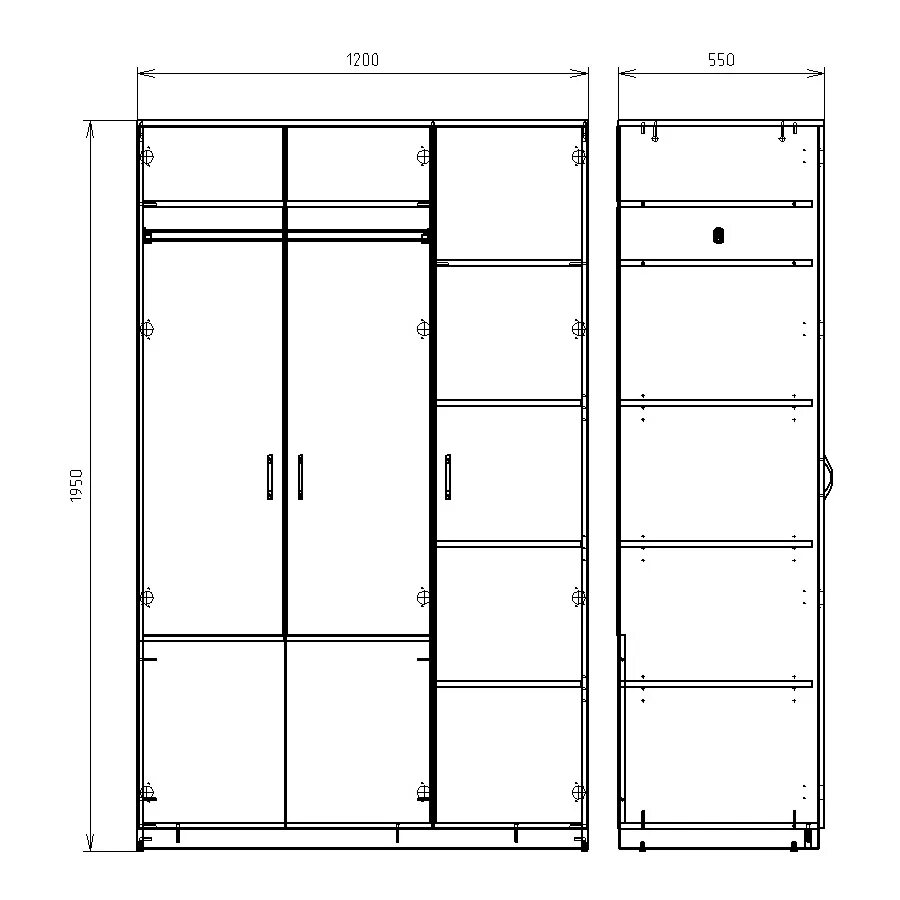
Размеры шкафов металлические для одежды