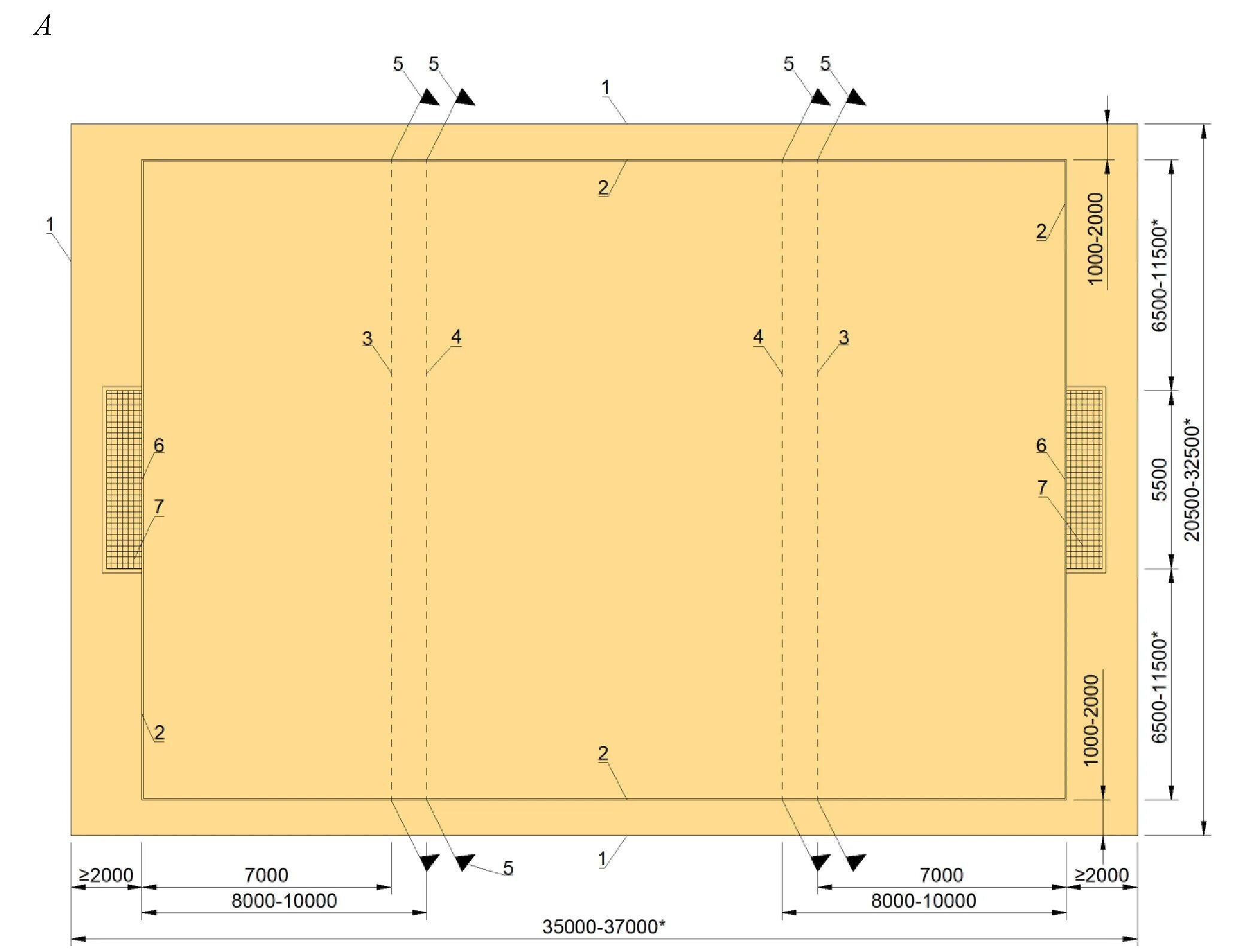
Размеры ворот футбольного поля