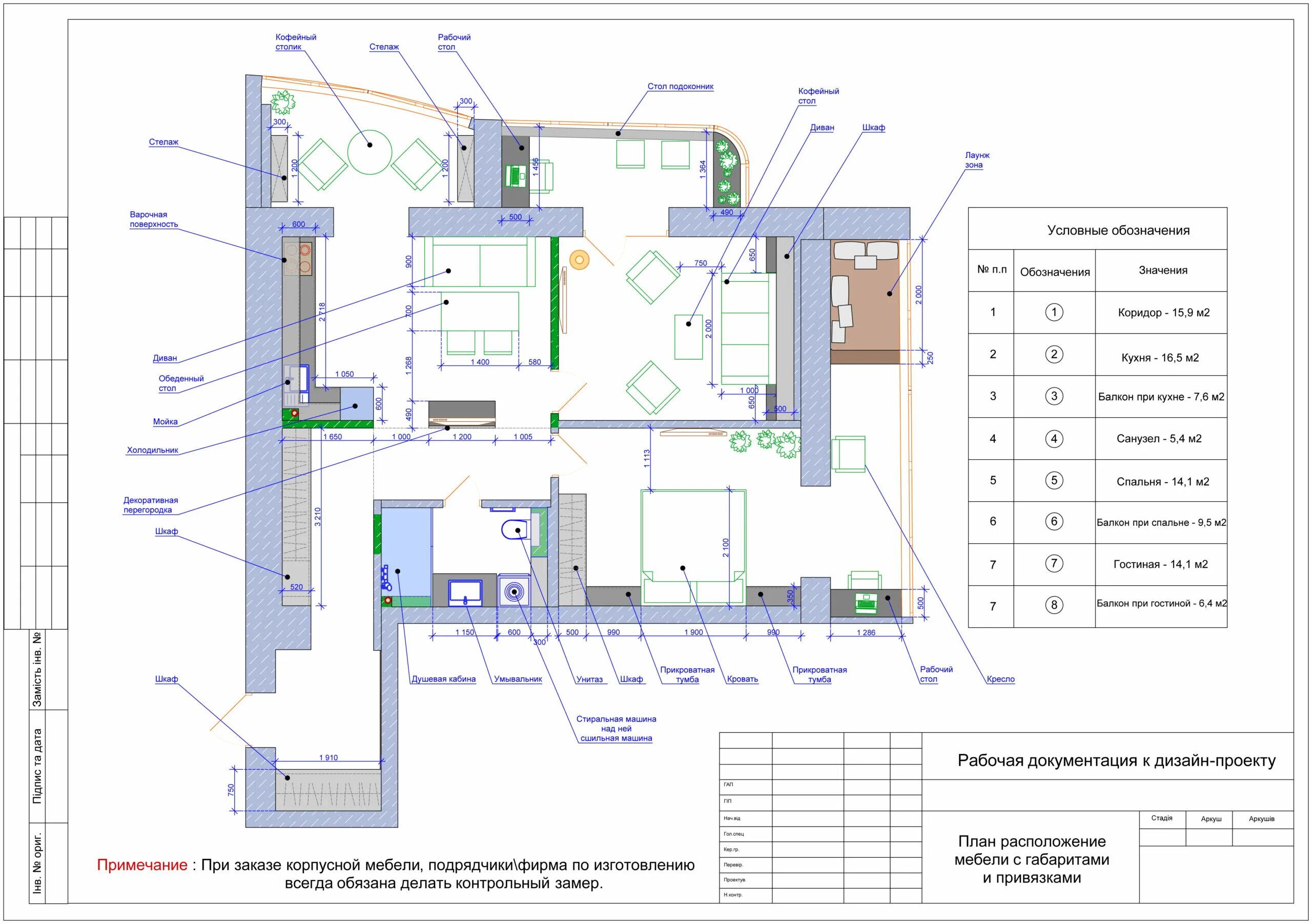
Разработка технического проекта и рабочей документации