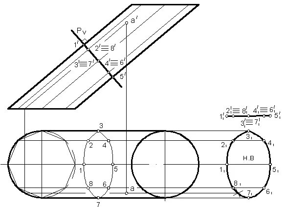
Развертка наклонного цилиндра