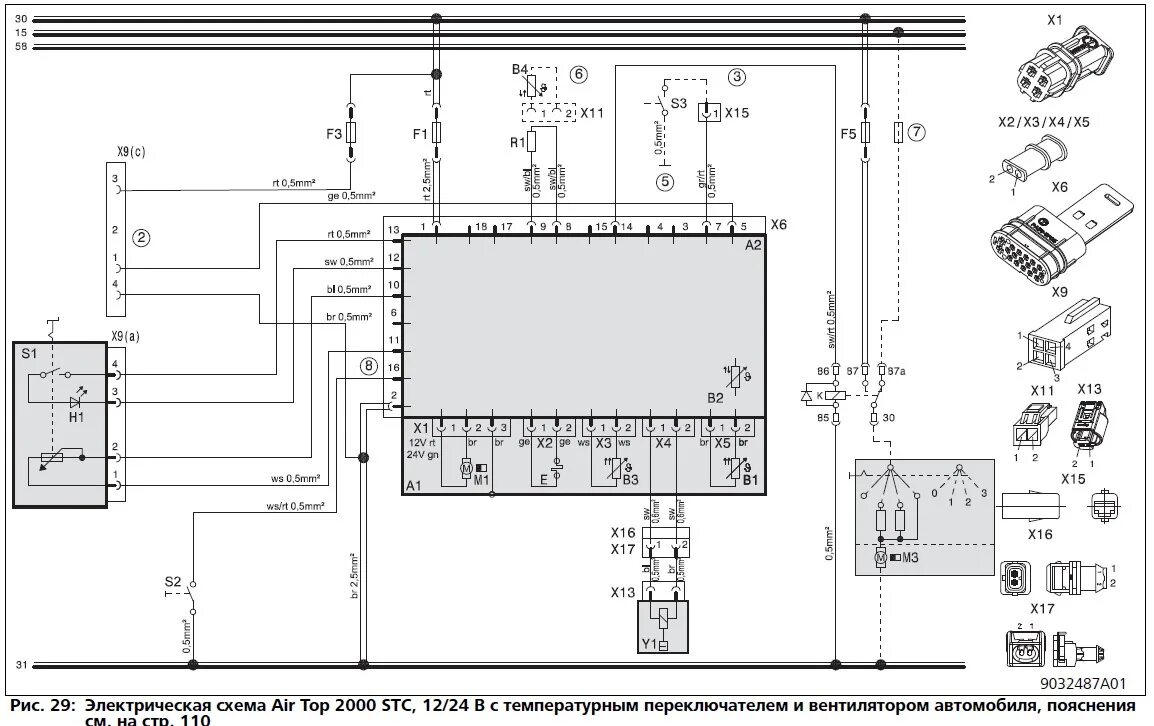
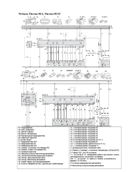
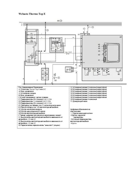
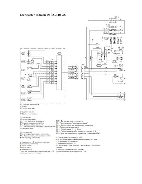
Схема подключения webasto air top