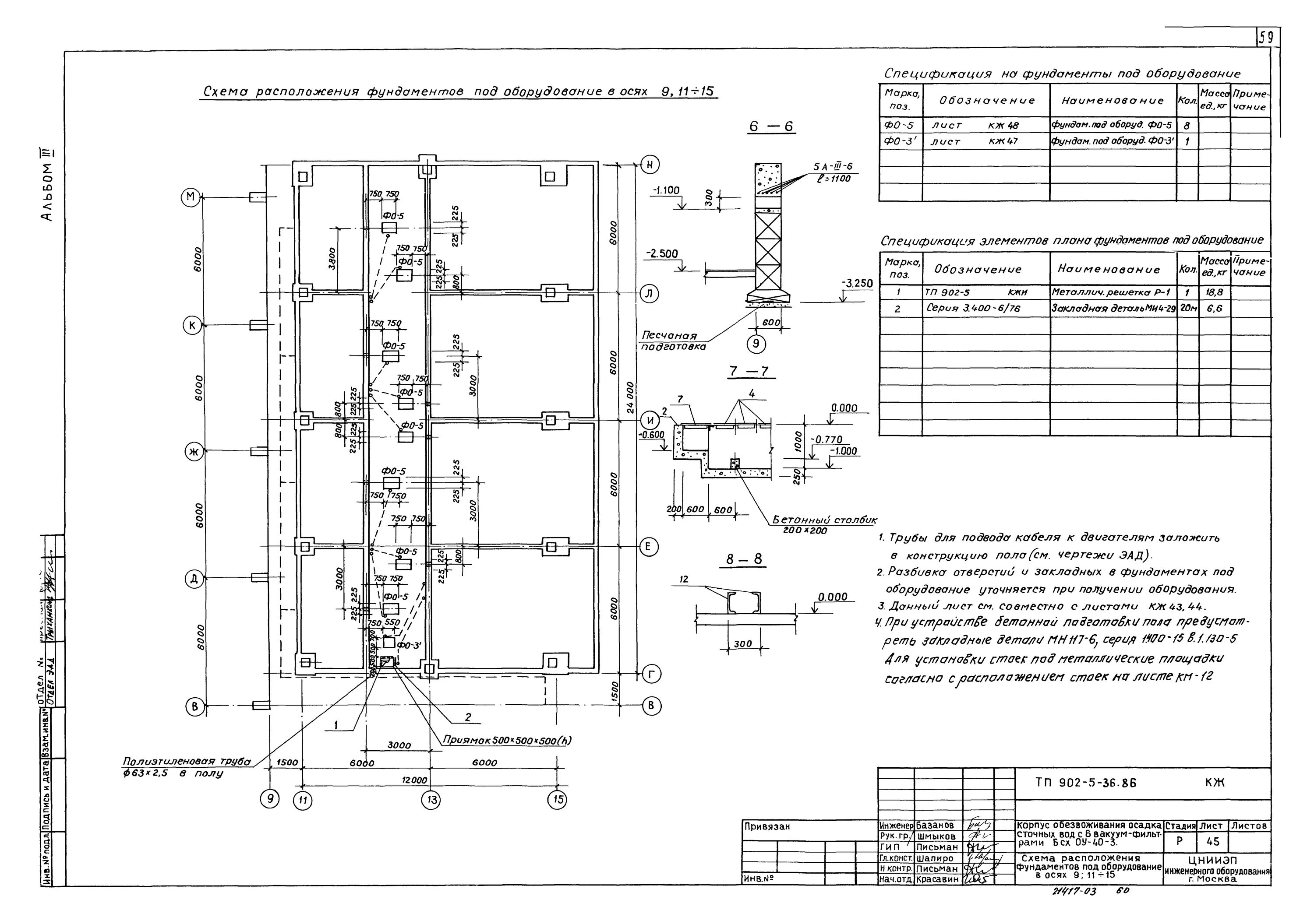
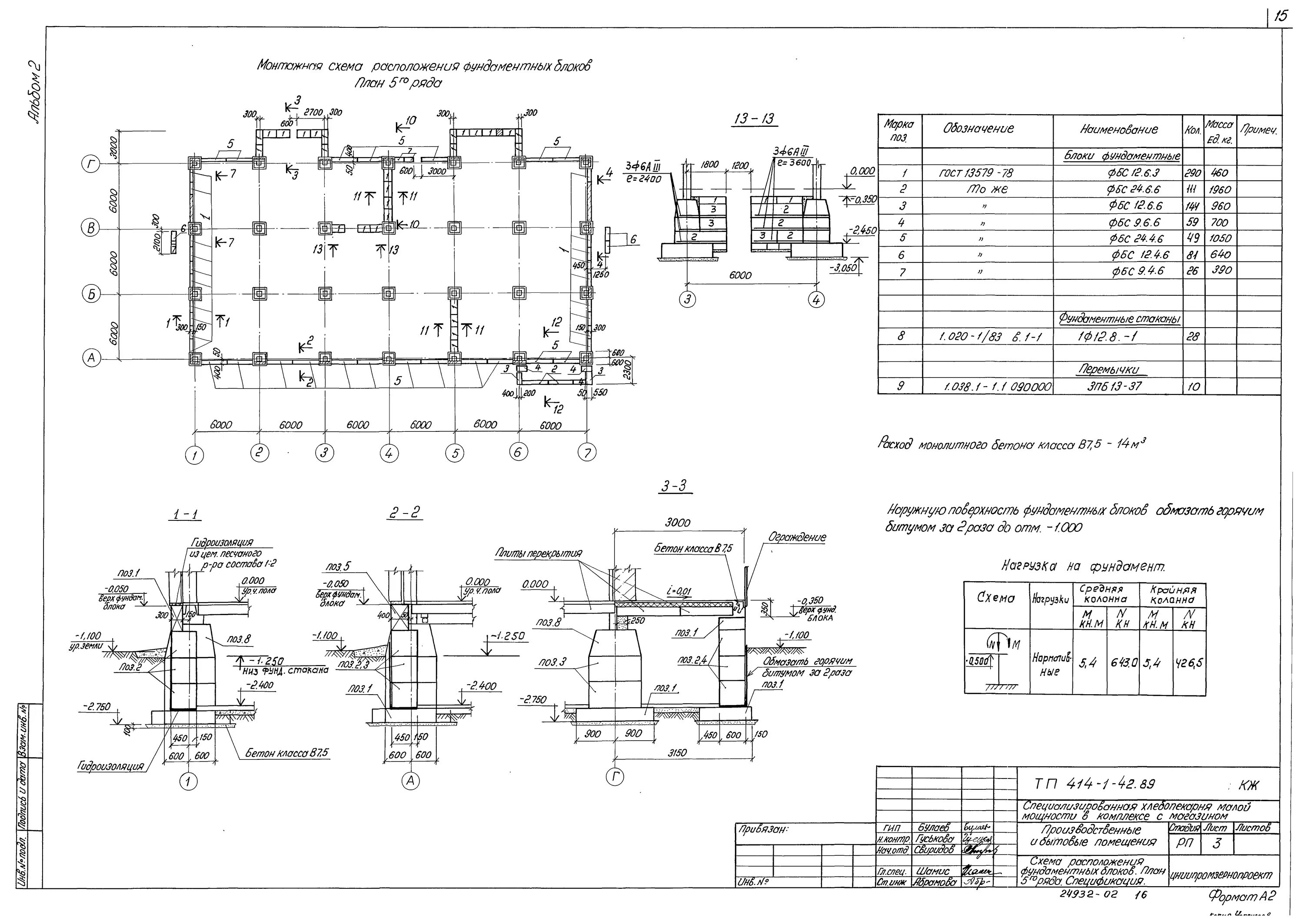
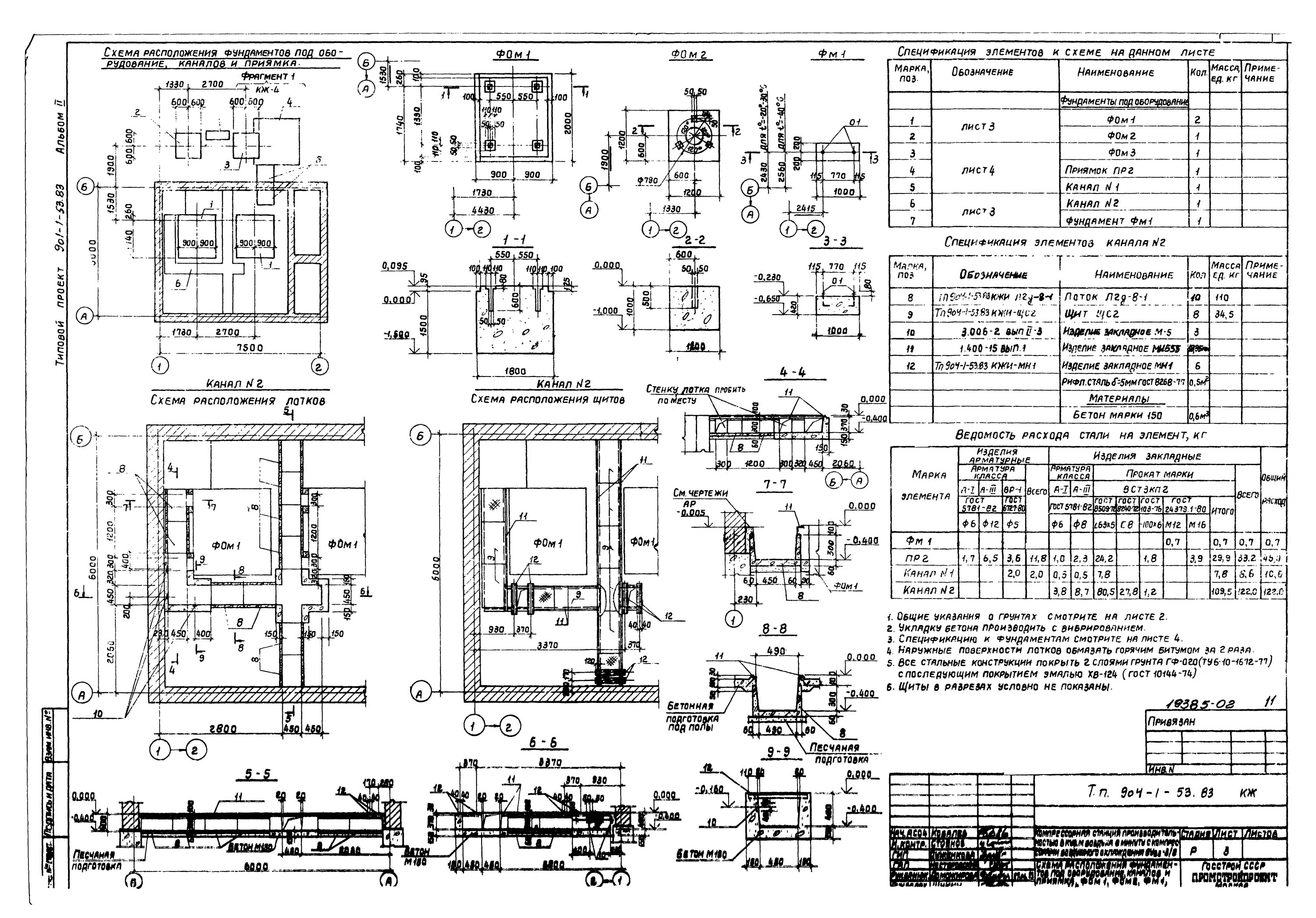
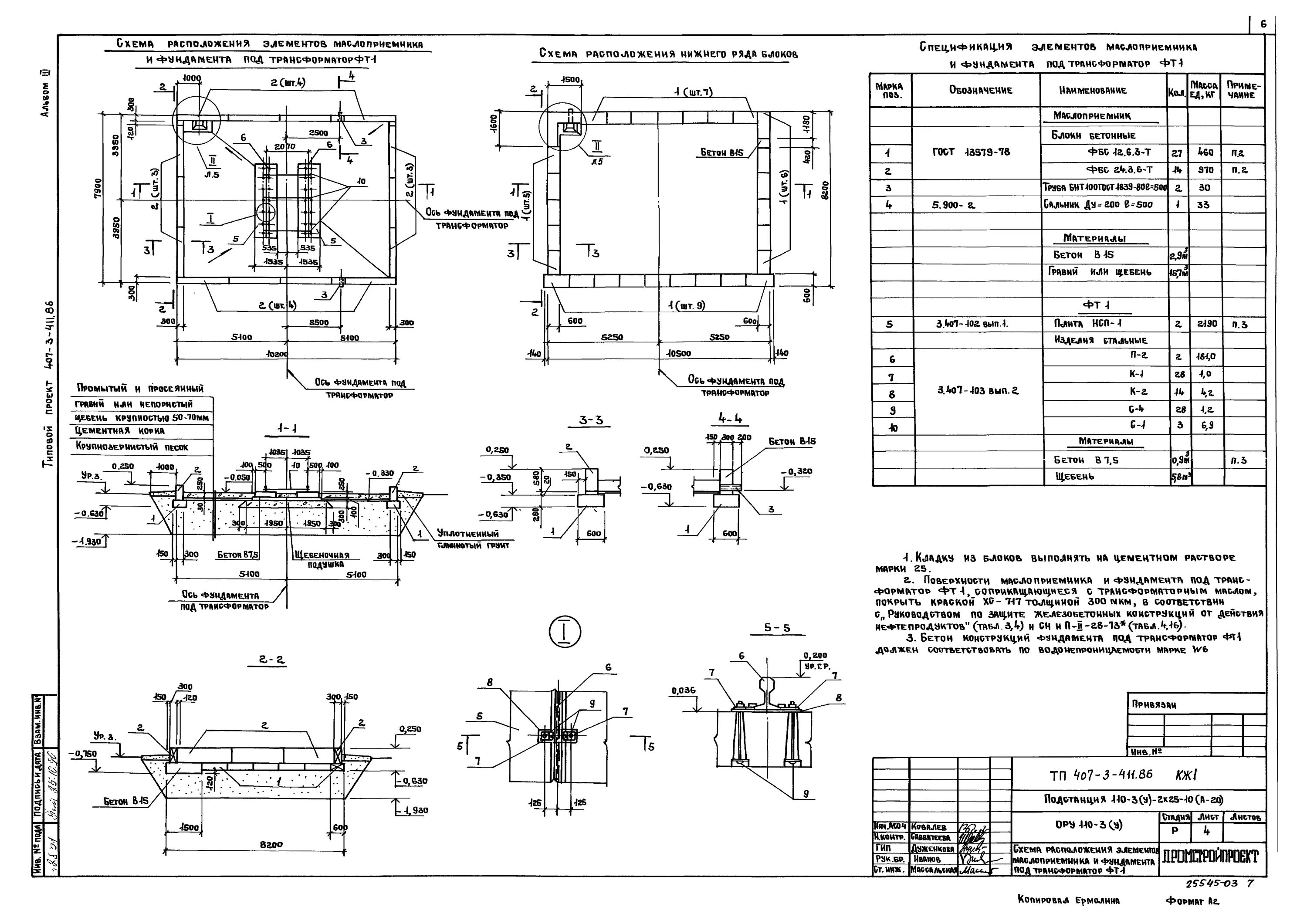
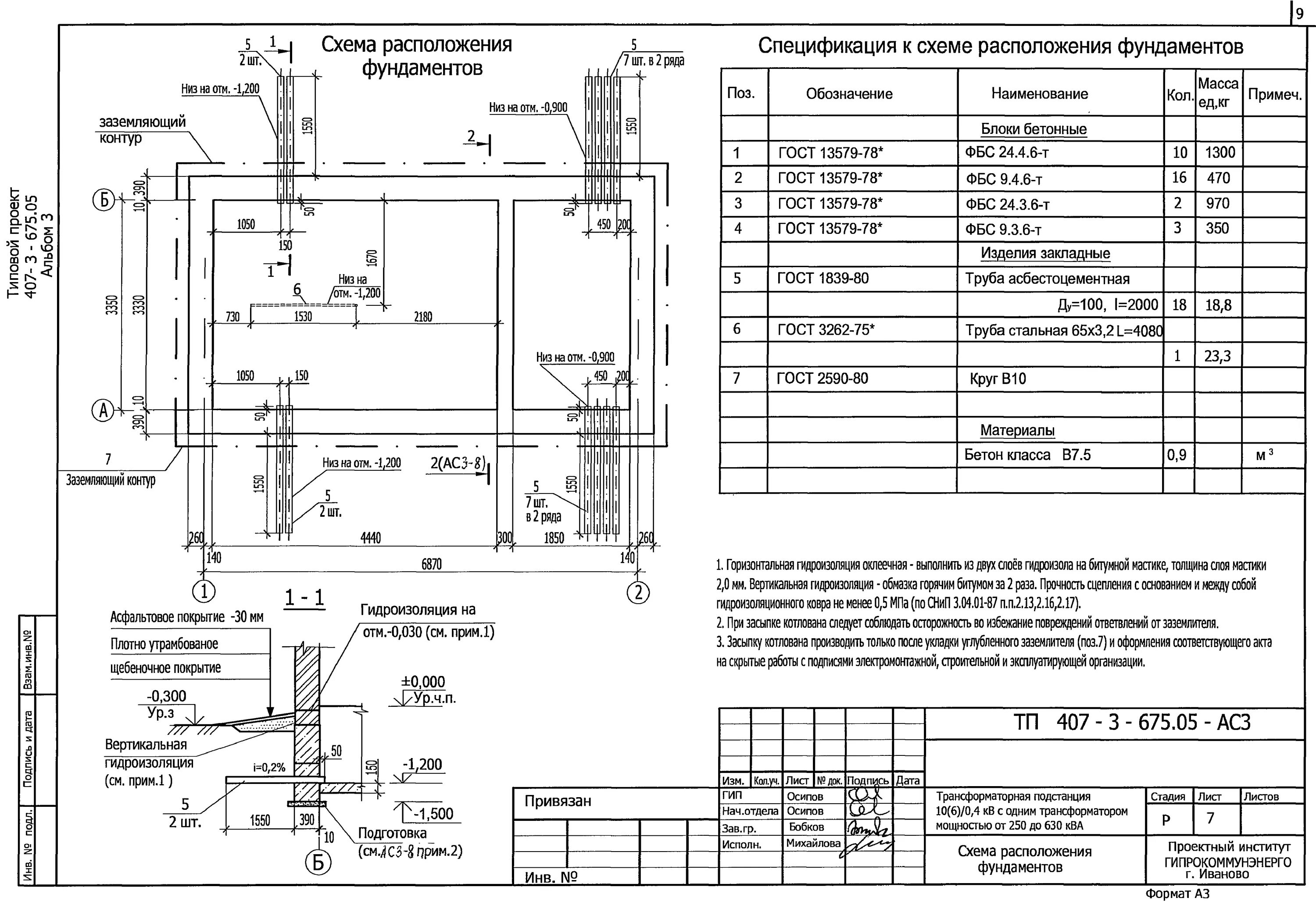
Схема расположения элементов фундамента