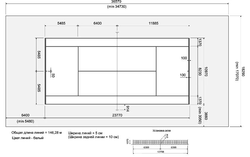
Ширина линии разметки площадки