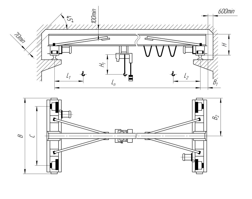
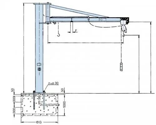
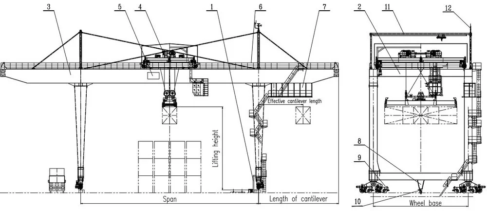
Система двух кранов