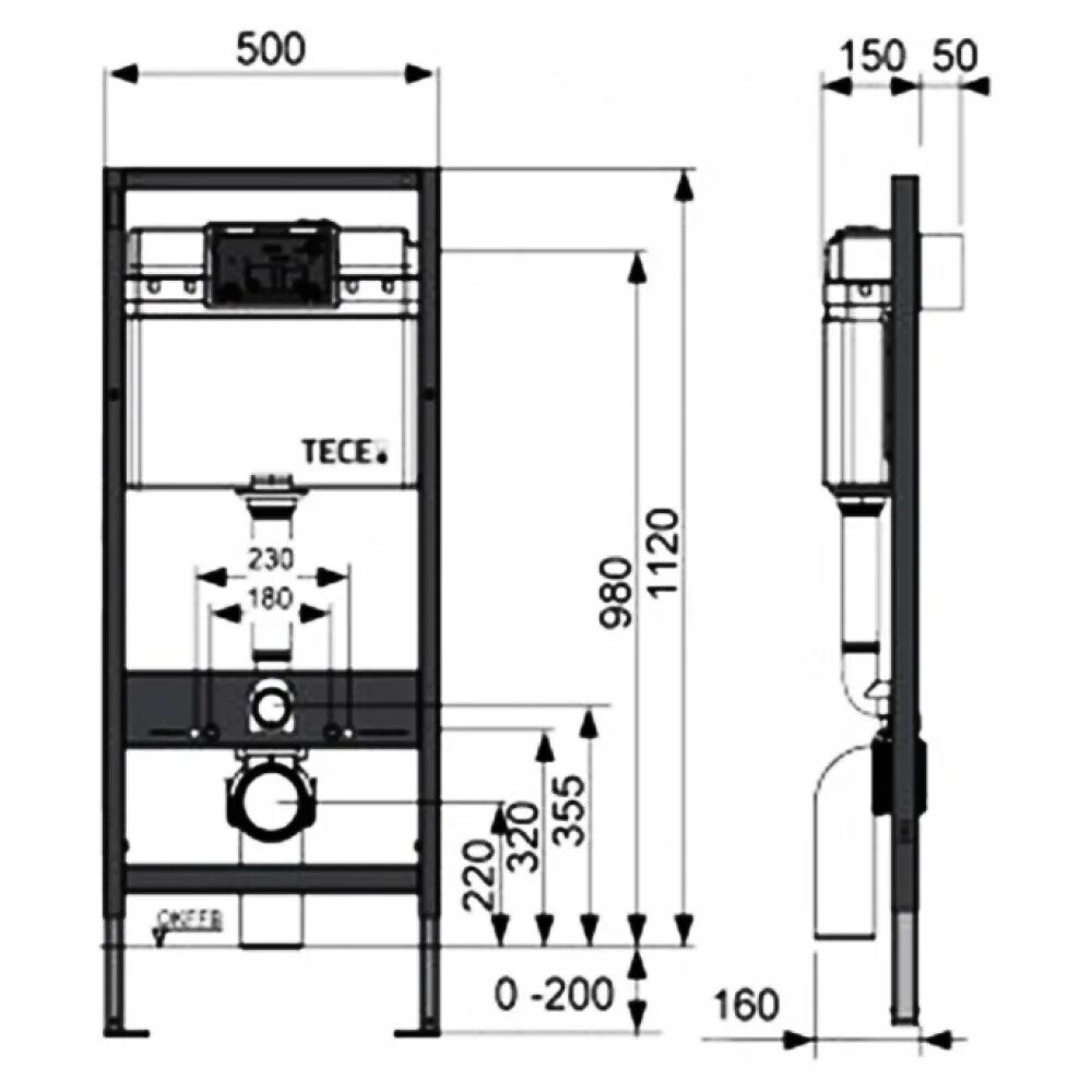
Система инсталляции для унитазов tece base