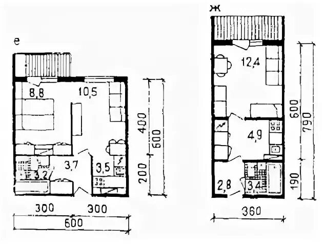
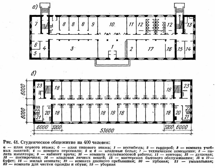
Типы жилых помещений в общежитиях