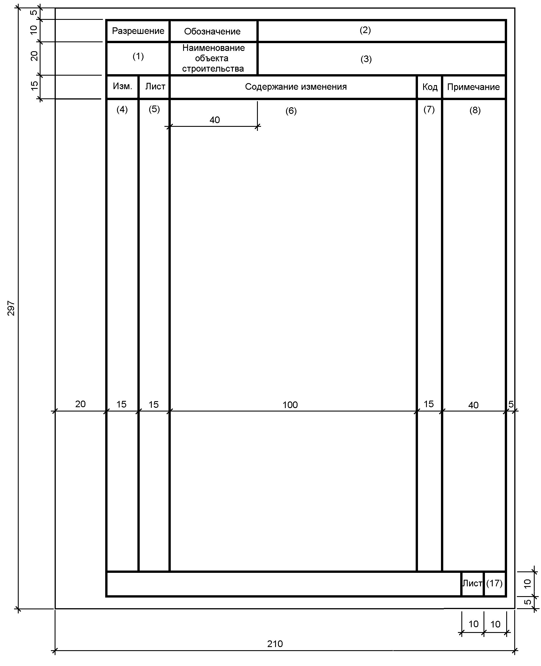
Титульный лист внесение изменений