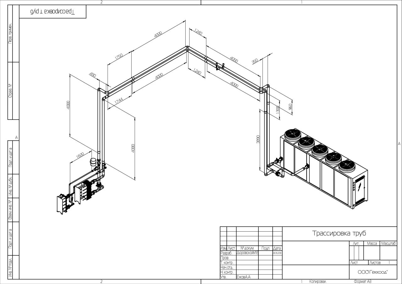
Трассировка системы размер буфера