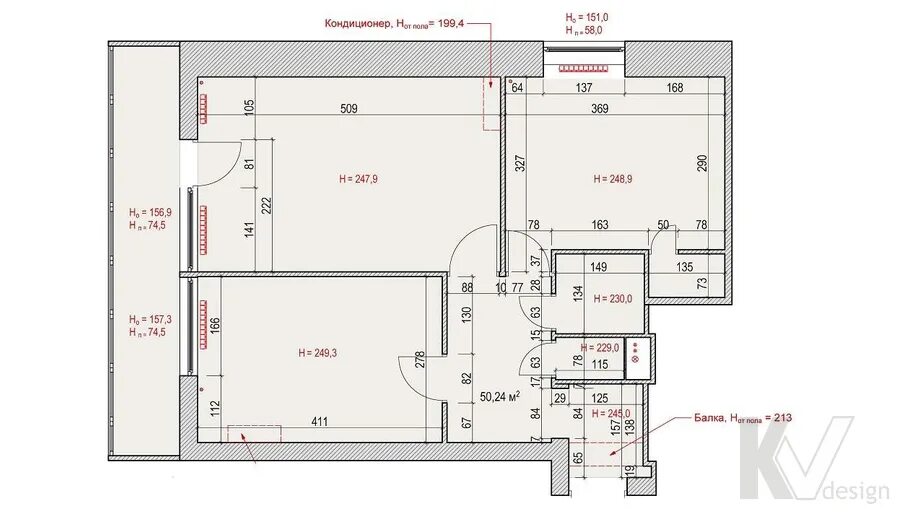
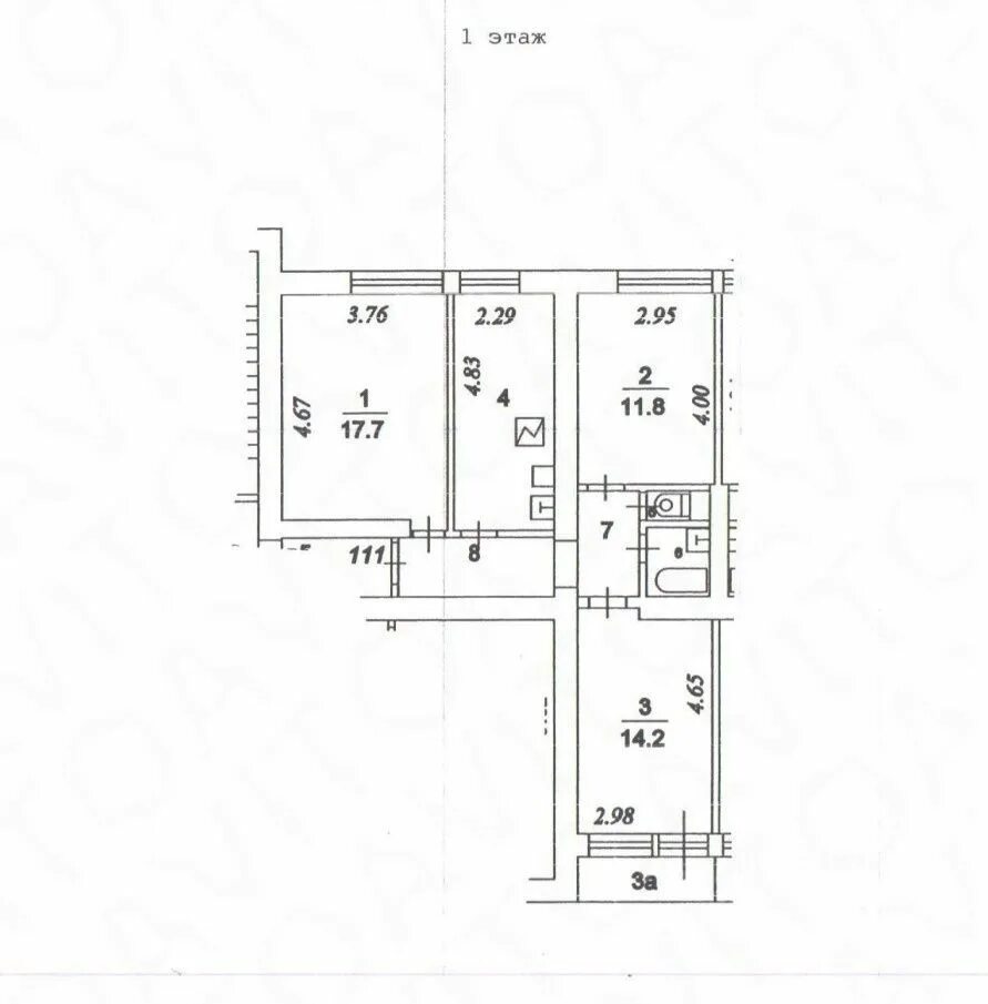
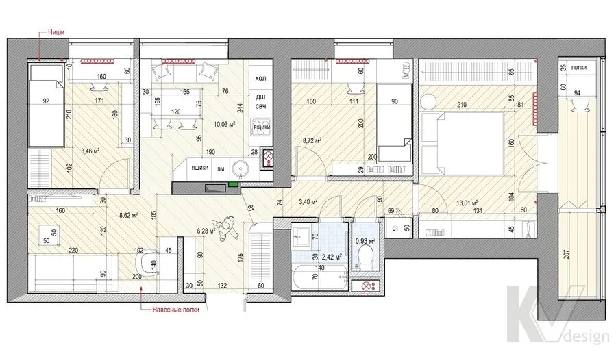
Трехкомнатная квартира ii 68