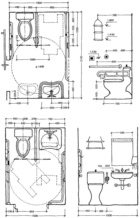
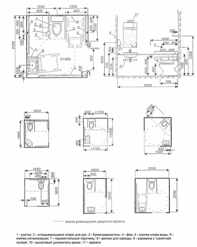
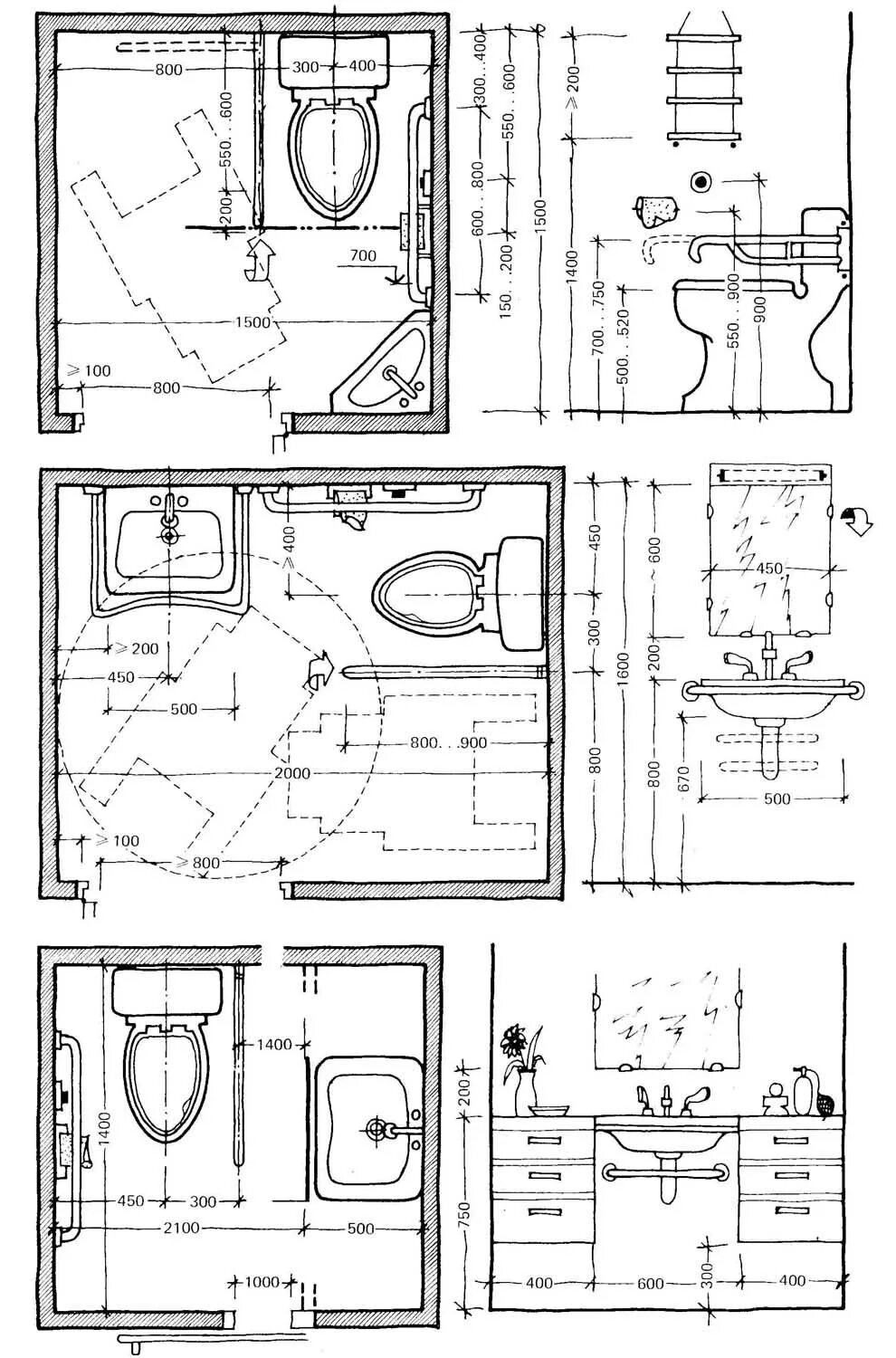
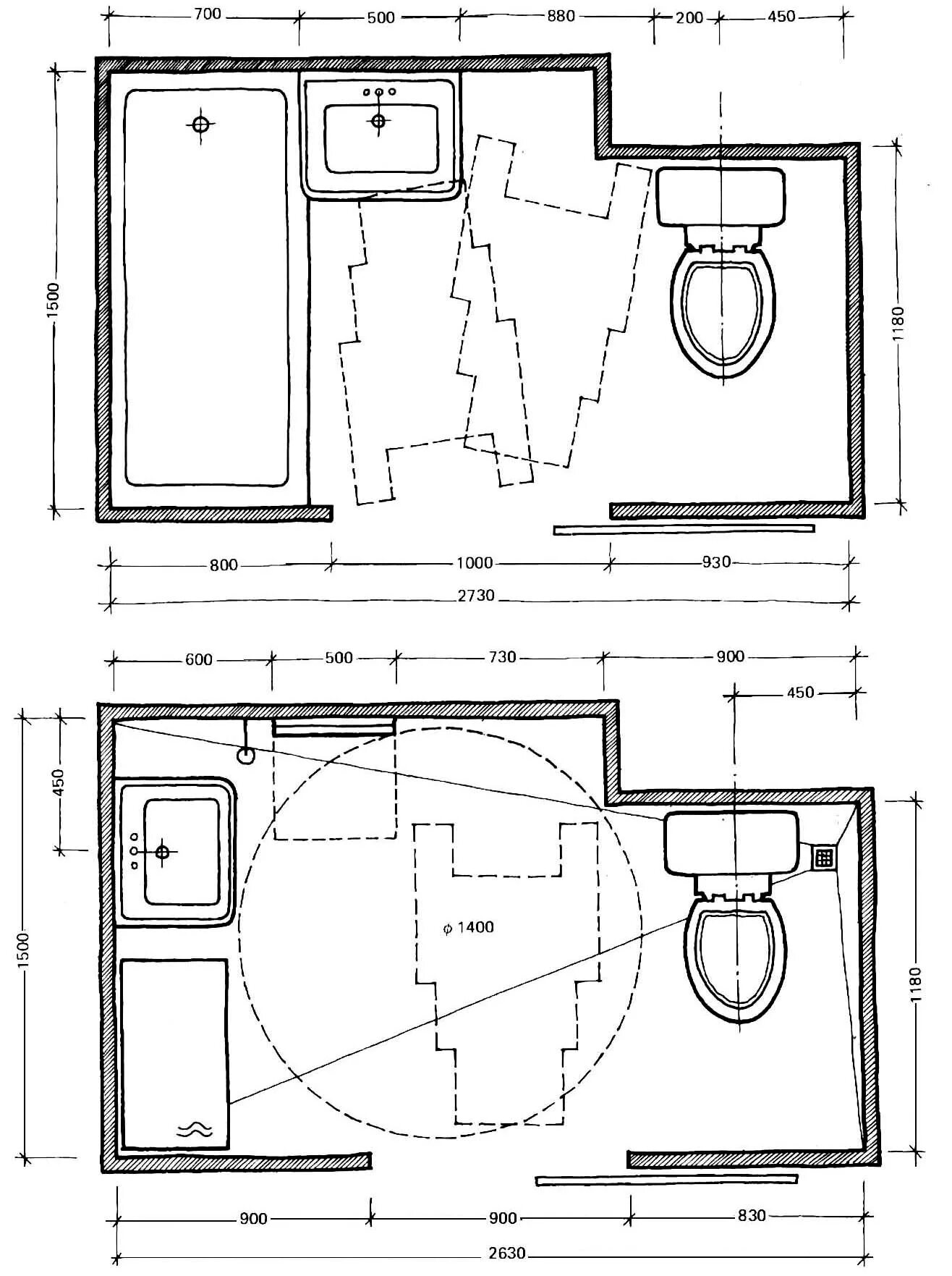
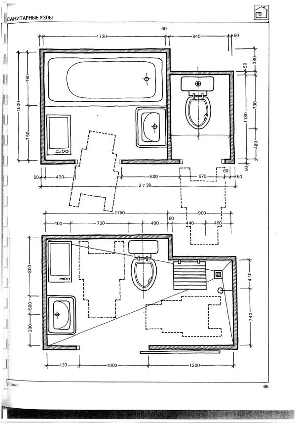
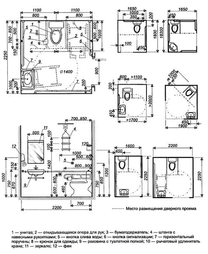
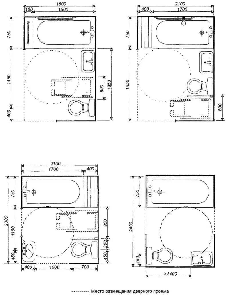
Туалет для инвалидов размеры