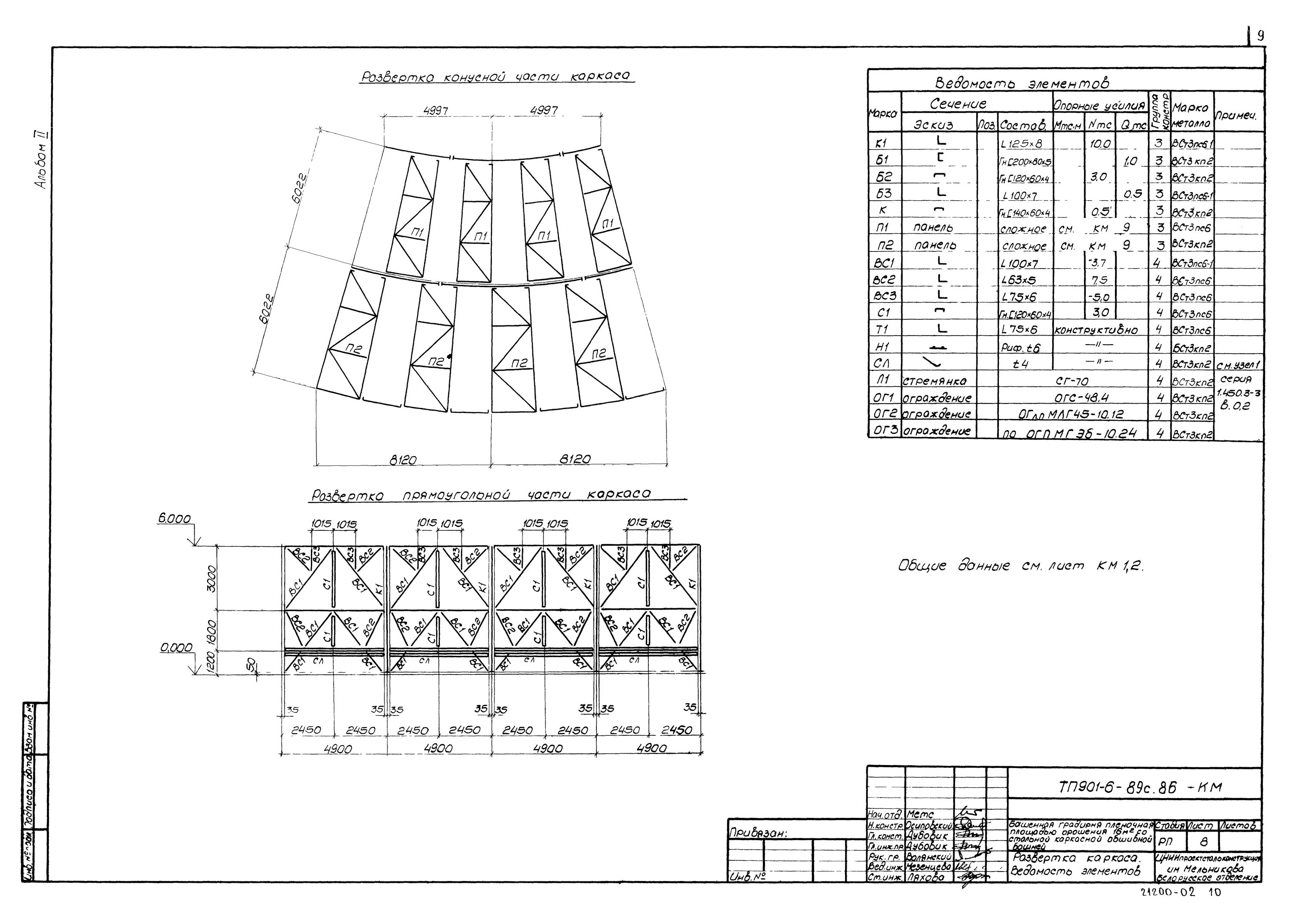
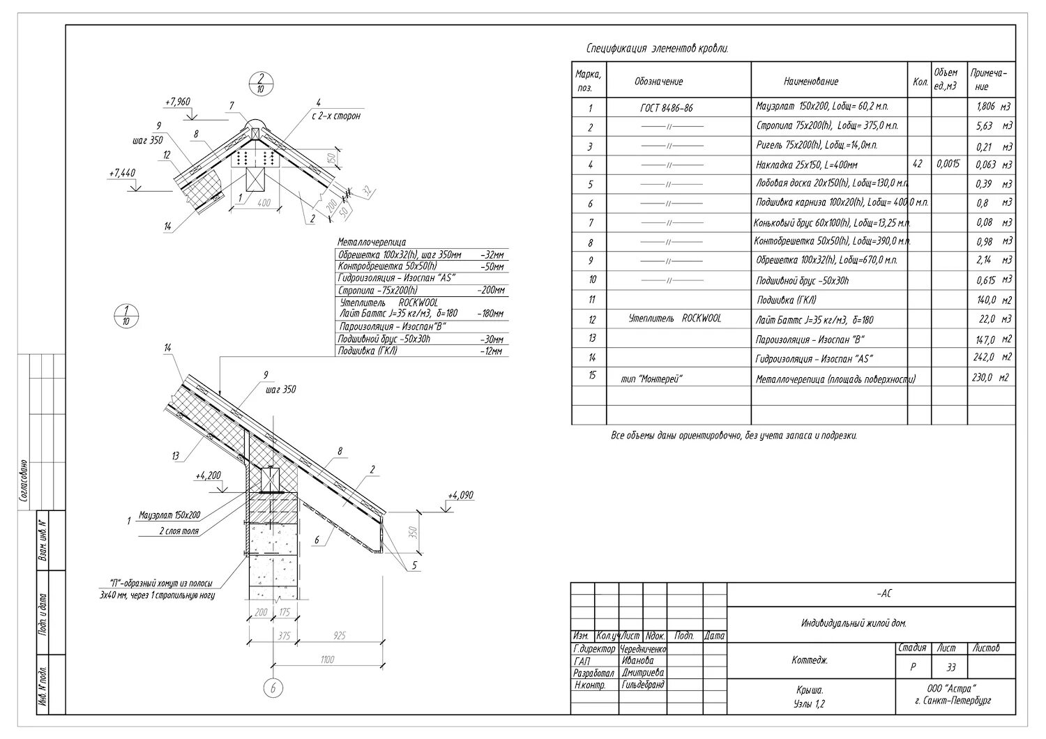
Ведомость конструктивных элементов